Samostojna hiša, Brezovica pri Ljubljani - BAZA realestate

Samostojna hiša, Brezovica pri Ljubljani

HP13461226178

1351, Ljubljana, Slovenija

Natisni oglas

Osnovni podatki

Status
Prodaja
Tip nepremičnine
Hiša
Država
Slovenija
Tip nepremičnine
Samostojna
Regija
Ljubljana okolica
Etažnost
P+1
Skupna površina
203,50 m2
Bivalna površina
105,80 M2
Leto gradnje
1980
Velikost zemljišča
655,00
Energetski razred
G
Leto izgradnje
1968 - 1980

Opis

OGLASU JE PRILOŽENA VIZUALIZACIJA POTENCIALNE UREDITVE NOTRANJIH PROSTOROV.

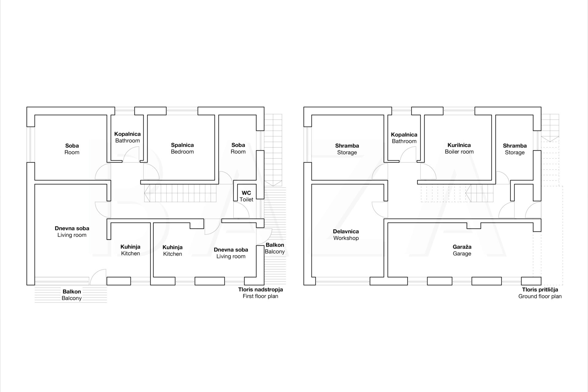
Samostojna hiša, Ljubljana okolica – Brezovica pri Ljubljani, zgrajeno l. 1980, P+1, neto tlorisna površina 203,50 m2, bivalni prostor 105,80 m2, balkon 7,90 m2, shramba 11,50 m2, klet 20,30 m2, nerazporejen prostor 18,80 m2, garaža 39,20 m2, površina zemljišča 655,00 m2. Cena: 459.000 EUR.

Na izredno iskani in mirni lokaciji na Brezovici prodamo samostojno hišo z dvema stanovanjskima enotama. Lokacija nudi vse prednosti bivanja izven mestnega vrveža, v stiku z naravo in je hkrati le nekaj minut vožnje oddaljena od Ljubljane. V neposredni bližini se nahajajo osnovna šola, vrtec, postajališče LPP in trgovine, kar omogoča udobno vsakdanje bivanje in zato je še posebej primerno za družine.

Hiša je klasične opečne gradnje, zgrajena leta 1980, ima 15 cm toplotne izolacije in stoji na parceli velikosti 655 m2. Del hiše je trenutno urejen kot ločeno stanovanje, objekt pa je bil prvotno zasnovan kot enostanovanjska hiša in ga je z manjšo preureditvijo (odstranitvijo predelnih sten) mogoče ponovno povezati v enotno bivalno celoto.

V pritličju prve enote se nahajajo lovska soba s kaminom, kurilnica, utility, kopalnica s pralnico in tušem, shramba, garaža ter kabinet oz. pisarna. Nadstropje obsega dnevni prostor s kuhinjo in jedilnico ter izhodom na balkon, spalnico in kopalnico s kadjo.  Na podstrešju je urejena soba za druženje ter dodatni prostor za shranjevanje.

Druga enota ima ločen vhod in obsega predprostor, kuhinjo z dnevnim prostorom in izhodom na balkon, kopalnico s kadjo, WC-jem in pralnim strojem, pisarno ter spalnico, kar omogoča večgeneracijsko bivanje ali kombinacijo bivanja in oddajanja v najem.

Povprečni mesečni stroški znašajo približno 300 EUR, ogrevanje je urejeno na kurilno olje in drva, hiša ima priključek na optični internet. Parkiranje je omogočeno v večji garaži in na dvorišču. Na parceli se nahajata tudi vrt ter dodatna garaža oziroma delavnica. Hiša se prodaja opremljena.

Nepremičnina je zemljiškoknjižno urejena, brez bremen, ima pravnomočno gradbeno dovoljenje in omogoča takojšnjo vselitev.

POGOJ PRODAJE: Pogoj lastnika nepremičnine je, da kupec v primeru realizacije prodaje/nakupa nepremičnine, povrne prodajalcu strošek agencijske provizije v višini 2 % od pogodbeno dogovorjene prodajne vrednosti nepremičnine + DDV.

V primeru zanimanja nas kontaktirajte; Agent Timotej Gal Kos, Tel: 00386-40-626-192, E-mail: gkos@bazarealestate.com.

Lepo vabljeni k ogledu.

Dodatno

Balkon/Terasa
Klet / Shramba

Tlorisi

Lokacija

Podobne nepremičnine

BAZA realestate
Pregled zasebnosti

To spletno mesto uporablja piškotke z namenom zagotovljanja najboljše možne uporabniške izkušnje. Podatki o piškotkih so shranjeni v vašem brskalniku in opravljajo funkcije pomnenja in prepoznave vaših nastavitev v brskalniku. Ko se vrnete na naše spletno mesto so shranjeni piškotki v pomoč naši ekipi, da razume kateri deli spletnega mesta so vam najbolj zanimivi in ​​uporabni.