Detached house, Brezovica pri Ljubljani - BAZA realestate

Detached house, Brezovica pri Ljubljani

HP13461226178

1351, Ljubljana, Slovenija

Print listing

Key Details

Status
For sale
Type
House
Country
Slovenia
Type of real estate
Samostojna
Region
Wider Ljubljana Region
Storey layout
GF+1
Gross surface area
203,50 m2
Net surface area
105,80 m2
Year of construction
1980
Land
655,00 m2
Energy class
G
Year of construction
1968 - 1980

Overview

THE AD INCLUDES A VISUALIZATION OF THE POTENTIAL INTERIOR LAYOUT.

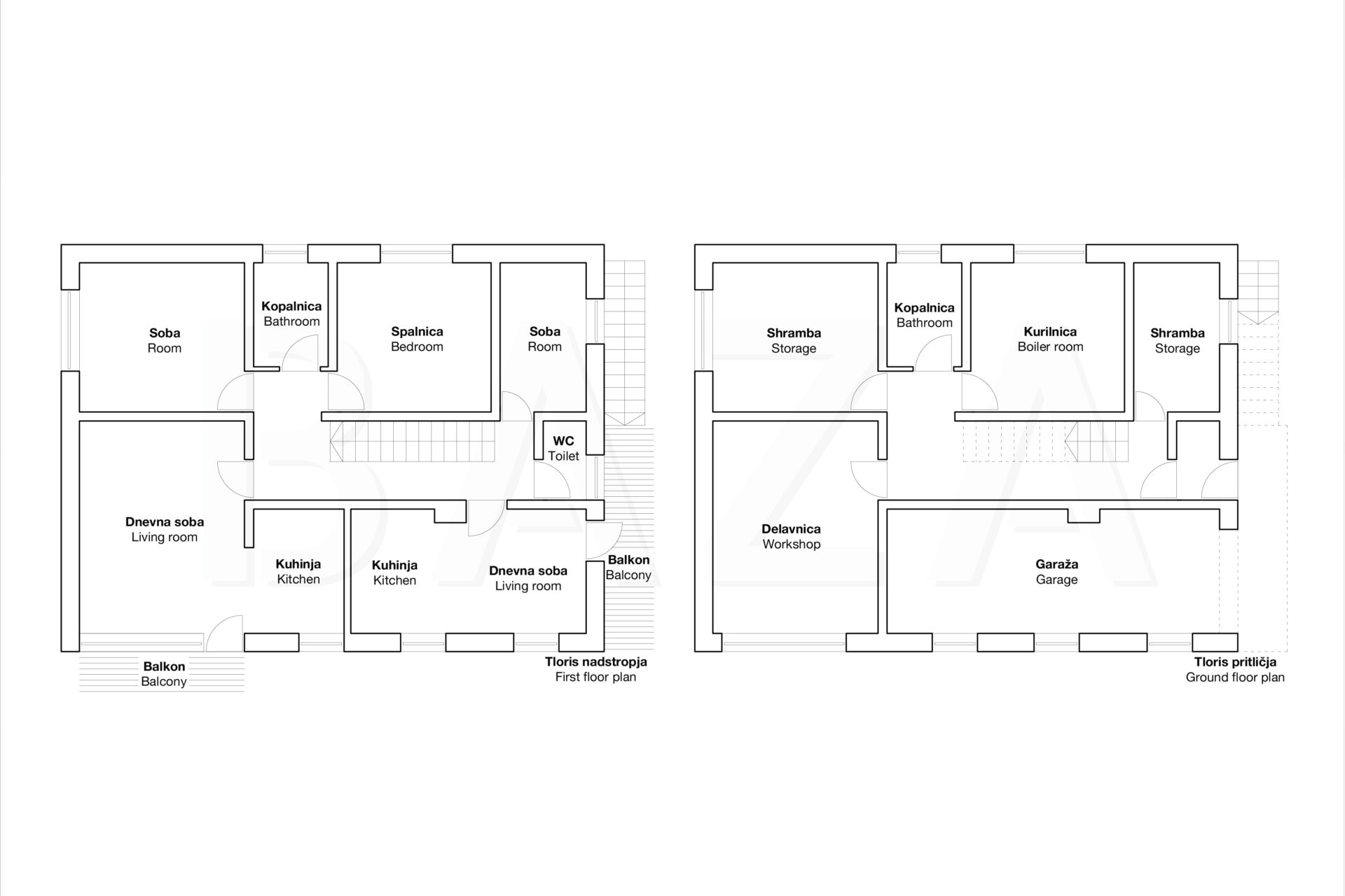
Detached house, Ljubljana surroundings – Brezovica pri Ljubljani, built in 1980, ground floor + 1, net floor area 203.50 m2, living space 105.80 m2, balcony 7.90 m2, storage room 11.50 m2, cellar 20.30 m2, unfinished space 18.80 m2, garage 39.20 m2, land area 655.00 m2. Price: 459,000 EUR.

In an extremely sought-after and quiet location in Brezovica, we are selling a detached house with two residential units. The location offers all the advantages of living outside the city hustle, in contact with nature, and is only a few minutes’ drive from Ljubljana. In the immediate vicinity, there is an elementary school, kindergarten, LPP bus stop, and shops, which allows for comfortable everyday living and is therefore especially suitable for families.

The house is of classic brick construction, built in 1980, has 15 cm thermal insulation, and stands on a plot of 655 m2. Part of the house is currently arranged as a separate apartment, but the building was originally designed as a single-family house and can be reconnected into a single living unit with minor modifications (removal of partition walls).

On the ground floor of the first unit, there is a hunting room with a fireplace, boiler room, utility room, bathroom with laundry and shower, storage room, garage, and a study or office. The upper floor includes a living room with kitchen and dining area and access to a balcony, a bedroom, and a bathroom with a bathtub. The attic is arranged as a recreation room and additional storage space.

The second unit has a separate entrance and consists of an entrance hall, kitchen with living room and access to a balcony, bathroom with bathtub, toilet, and washing machine, office, and bedroom, allowing for multigenerational living or a combination of living and renting out.

Average monthly costs amount to approximately 300 EUR, heating is provided by heating oil and wood, and the house has a fiber optic internet connection. Parking is available in a larger garage and in the courtyard. The plot also includes a garden and an additional garage or workshop. The house is sold furnished.

The property is registered in the land registry, free of encumbrances, has a valid building permit, and allows immediate occupancy.

CONDITION OF SALE: The owner’s condition is that the buyer, in the event of a sale/purchase transaction, reimburses the seller an agency commission fee of 2% of the contractually agreed sale price of the property plus VAT.

If interested, please contact us; Agent Timotej Gal Kos, Tel: 00386-40-626-192, E-mail: gkos@bazarealestate.com.

You are warmly invited to view the property.

Amenities

Balcony/Terrace
Basement / Storage

Floor Plans

Explore the Area

Similar Properties

BAZA realestate
Privacy Overview

This website uses cookies so that we can provide you with the best user experience possible. Cookie information is stored in your browser and performs functions such as recognising you when you return to our website and helping our team to understand which sections of the website you find most interesting and useful.