4-sobno stanovanje, Ljubljana Center - BAZA realestate

4-sobno stanovanje, Ljubljana Center

SP13461226210

1000, Ljubljana, Ljubljana

Natisni oglas

Osnovni podatki

Status
Prodaja
Tip nepremičnine
Stanovanje
Država
Slovenija
Regija
Ljubljana mesto
Sobnost
4-sobno
Skupna površina
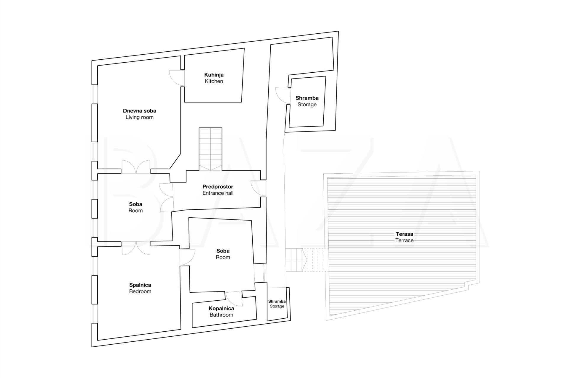
137,60 m2
Bivalna površina
80,30 m2
Nadstropje
1. /2.
Leto gradnje
1803
Leto prenove
2005
Leto izgradnje
do 1968

Opis

4-sobno stanovanje, Ljubljana-Center, zgrajeno l. 1803, obnovljeno l. 1997, osveženo l. 2005, 1. /2. nad., neto tlorisna površina 137,60 m2, uporabna površina 80,30 m2, terasa 52,30 m2, shramba 5,00 m2. Cena: 480.000 EUR.

OGLASU JE PRILOŽENA VIZUALIZACIJA POTENCIALNE UREDITVE NOTRANJIH PROSTOROV.

Za vse ljubitelje starega mestnega jedra predstavljamo svetlo 4-sobno staromeščansko stanovanje na Gornjem trgu. Mirna lokacija ponuja veliko zasebnosti, romantičen sprehod do Ljubljanskega gradu, številne kulturne ustanove so na dosegu roke kot tudi restavracije, trgovine in ostala infrastruktura. Stavba je dostopna z avtomobilom, in ima možnost parkiranja z mestno dovolilnico ob stavbi.

Stanovanje se nahaja v prvem nadstropju in ima jugo zahodno lego. Tloris obsega 3 prehodne sobe, spalnico, kuhinjo in kopalnico. Stanovanje odlikujejo karakteristike staromeščanske arhitekture – delno obokan visok strop 280 cm, tla obložena s parketom v klasičnem vzorcu ribje kosti, dvokrilna vrata, ohranjeni sta dve lončeni peči.

Stanovanje je bilo osveženo leta 2005, je neopremljeno, razen kuhinje, ki je iz leta 2022. Na notranjem dvorišču se nahaja večja zasebna terasa, ki je redkost v tem delu mesta. Ločena zunanja shramba  z večjim okonom je v istem nadstropju. Dodatno stanovanju pripada manjši zunanji prostor, kjer je bilo nekoč stranišče in se lahko preuredi v utili/pralnico.

Stavba ima vse priključke, fasada in streha sta bili obnovljeni leta 1997. Ogrevanje je z radiatorji vezano na plin, stroški so nizki.

Postopek etažne lastnine je v teku, trenutno se prodaja idealni delež nepremičnine.

Stanovanje ima dober potencial, da se uredi v unikaten dom ali kot naložba, saj tloris omogoča tudi razdelitev na dve stanovanjski enoti.

POGOJ PRODAJE: Pogoj lastnika nepremičnine je, da kupec v primeru realizacije prodaje/nakupa nepremičnine, povrne prodajalcu strošek agencijske provizije v višini 2 % od pogodbeno dogovorjene prodajne vrednosti nepremičnine + DDV.

V primeru zanimanja nas kontaktirajte; Agentka Ana Paska Sešek, Tel: 00386-40-626-216, E-mail: apsesek@bazarealestate.com.

Lepo vabljeni k ogledu.

Dodatno

Balkon/Terasa

Tlorisi

Lokacija

Nepremičnino trži

Izberi datum
Izberi čas
V primeru, če bi želeli ogled izven določenih ur pokličite posrednika.

Podobne nepremičnine

BAZA realestate
Pregled zasebnosti

To spletno mesto uporablja piškotke z namenom zagotovljanja najboljše možne uporabniške izkušnje. Podatki o piškotkih so shranjeni v vašem brskalniku in opravljajo funkcije pomnenja in prepoznave vaših nastavitev v brskalniku. Ko se vrnete na naše spletno mesto so shranjeni piškotki v pomoč naši ekipi, da razume kateri deli spletnega mesta so vam najbolj zanimivi in ​​uporabni.