4-sobno stanovanje, Ljubljana Rožnik - BAZA realestate

4-sobno stanovanje, Ljubljana Rožnik

SP13461226212

1000, Ljubljana, Slovenija

Natisni oglas

Osnovni podatki

Status
Prodaja
Tip nepremičnine
Stanovanje
Država
Slovenija
Regija
Ljubljana mesto
Sobnost
4-sobno
Etažnost
K+P+1+Po
Skupna površina
158,70 m2
Bivalna površina
119,90 m2
Leto gradnje
2025
Parkirna mesta
2

Opis

4-sobno stanovanje, Ljubljana – Rožnik, zgrajeno l. 2025, 1+2, skupna neto površina 158,70 m2, bivalni prostor 119,90 m2, terasa 38,80 m2. Cena: 1.200.000 EUR.

OGLASU JE PRILOŽENA VIZUALIZACIJA POTENCIALNE UREDITVE NOTRANJIH PROSTOROV.30

V eni najbolj prestižnih in zelenih stanovanjskih lokacij v Ljubljani, pod Rožnikom, se nahaja sodobno 4-sobno stanovanje, umeščeno v nov dvostanovanjski objekt v mirni ulici.

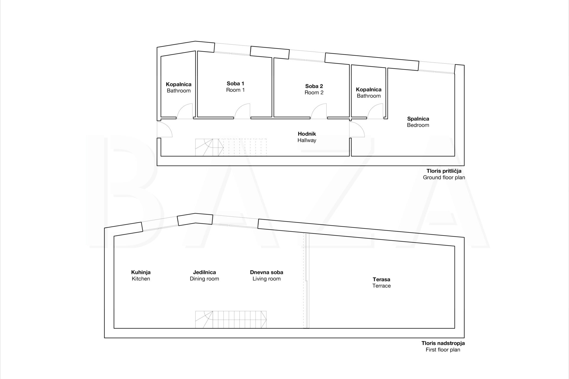
Stanovanje obsega klet, pritličje in prvo nadstropje s teraso ter je dostopno tudi z lastnim dvigalom (ali po stopnišču). V pritiličju je spalni del, ki obsega dve kopalnici, dve dodatni sobi ter spalnico. V nadstropju se nahaja bivalni del, kjer je predvidena umestitev kuhinje z jedilnico ter dnevnega prostora. Bivalni del se povezuje z veliko teraso, dodatno pa stanovanju pripada še prostoren zasebni atrij.

Objekt je zasnovan kot dvostanovanjski dvojček z etažnostjo K+P+1+2 in je grajen v betonski ter železobetonski konstrukciji. Stavba ima dvokapno streho ter je umeščena v rahlo razgiban teren, kar omogoča funkcionalno razporeditev prostorov in visoko stopnjo zasebnosti. Kletna etaža je delno vkopana in vključuje tudi zunanji kletni atrij, tehnične prostore ter shrambe. Vsako stanovanje ima popolnoma ločene in individualne sisteme ter samostojne priključke.

Pri gradnji in opremi so bili uporabljeni izključno visoko kakovostni materiali, stavba pa je delo priznanega arhitekturnega biroja Bevk Perović. Stavbno pohištvo je izdelano iz masivnega sibirskega macesna s steklom brez refleksnega efekta. Vhodna vrata so kompozitna z masivnim lesenim jedrom, zvočno izolirana in opremljena z električnim vodilom. Senčenje je urejeno z ZIP roloji na elektromotor s screen platnom, notranja razsvetljava pa je zasnovana v sodelovanju z Arcadia Lightwear.

Ogrevanje in priprava tople sanitarne vode sta urejena preko individualne toplotne črpalke zrak/voda, vsako stanovanje ima svojo enoto, ogrevanje po celotnem stanovanju je talno. Hlajenje je izvedeno s split sistemom klimatskih naprav. Prezračevanje je naravno, dodatno pa so prisilno prezračevani kopalnice, shrambe in pomožni prostori. Vsako stanovanje ima lasten samostojni vodni priključek z vodomerom, nameščenim pred vhodom.

Dostop do objekta je urejen. Na zahodni strani parcele so urejena zunanja parkirišča v štokanem betonu, predvideni sta dve parkirni mesti na stanovanje, dodatno pa je izvedena predpriprava z vsemi razvodi za lastno polnilno postajo za električno vozilo.

Zemljiškoknjižno stanje je urejeno, nepremičnina je brez bremen, gradbeno in uporabno dovoljenje sta pridobljeni.

POGOJ PRODAJE: Pogoj lastnika je, da kupec v primeru realizacije prodaje povrne prodajalcu strošek agencijske provizije v višini 2 % od dogovorjene vrednosti + DDV.

V primeru zanimanja nas kontaktirajte; Agentka Gala Rogelj, Tel.: 00386 40 626 196, E-mail: grogelj@bazarealestate.com ali Agentka Barbara Lukan, Tel.: 00386 40 626 232, E-mail: blukan@bazarealestate.com.

Lepo vabljeni k ogledu.

Dodatno

Balkon/Terasa
Dvigalo
Atrij
Klet / Shramba

Tlorisi

Lokacija

Podobne nepremičnine

BAZA realestate
Pregled zasebnosti

To spletno mesto uporablja piškotke z namenom zagotovljanja najboljše možne uporabniške izkušnje. Podatki o piškotkih so shranjeni v vašem brskalniku in opravljajo funkcije pomnenja in prepoznave vaših nastavitev v brskalniku. Ko se vrnete na naše spletno mesto so shranjeni piškotki v pomoč naši ekipi, da razume kateri deli spletnega mesta so vam najbolj zanimivi in ​​uporabni.