4-sobno stanovanje, Šentvid - BAZA realestate

4-sobno stanovanje, Šentvid

SP13461226272

1210, Ljubljana, Slovenija

Natisni oglas

Osnovni podatki

Status
Prodaja
Tip nepremičnine
Stanovanje
Država
Slovenija
Regija
Ljubljana mesto
Sobnost
4-sobno
Skupna površina
90,60 m2
Bivalna površina
90,60 m2
Nadstropje
1. /1.
Leto gradnje
1913
Leto prenove
2025
Parkirna mesta
2
Leto izgradnje
do 1968

Opis

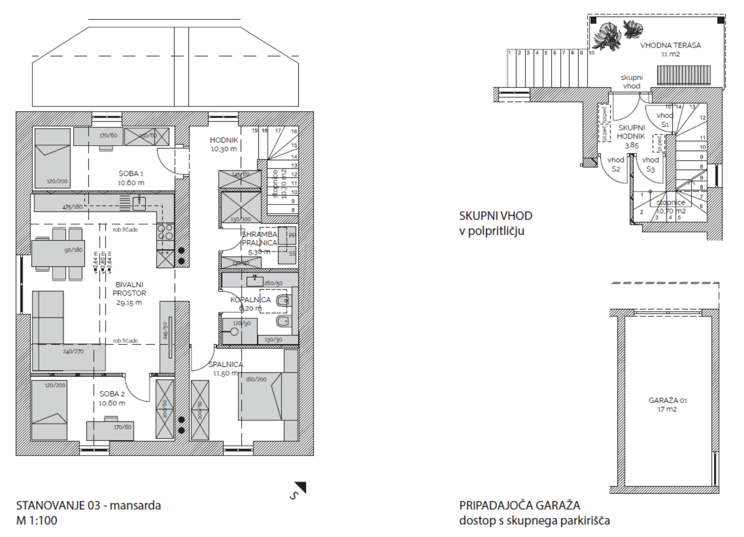
4-sobno stanovanje, Ljubljana – Šentvid, zgrajeno l. 1913, popolnoma prenovljeno l. 2025, 1./1. nad., v večstanovanjski hiši, neto tlorisna površina 90,60 m2, uporabna površina 90,60 m2, garaža 17,00 m2, parkirno mesto 18,00 m2. Cena: 465.000 EUR.

OGLASU JE PRILOŽENA VIZUALIZACIJA POTENCIALNE UREDITVE NOTRANJIH PROSTOROV.

Posredujemo pri prodaji svetlega in prostorneg mansardnega stanovanja v večstanovanjski hiši v Šentvidu. Hiša je bila v celoti prenovljena leta 2025. V bližini se nahaja vsa pomembna infrastruktura – vrtec, šola, trgovine, rekreacijske površine ter avtocestni priključek.

Stanovanje obsega dve sobi, spalnico, kopalnico, hodnik, stopnišče ter pralnico oziroma shrambo. Osrednji bivalni del predstavlja prostorna dnevna soba z jedilnico, ki nudi prijetno in udobno bivanje. Tloris je funkcionalno zasnovan in omogoča optimalen izkoristek prostora. Stanovanju pripada garaža, dodatno pa še eno nepokrito parkirno mesto.

Objekt je bil temeljito prenovljen, zato stanovanje nudi prijetno kombinacijo urejenega bivanja, funkcionalne razporeditve in večjega zunanjega prostora. Ogrevanje je urejeno na plin z lastno plinsko črpalko.

Nepremičnina je primerna za družine, pare ali posameznike, ki iščejo prostorno stanovanje z vrtom, teraso, parkiranjem in dobro dostopno lokacijo v Ljubljani.

POGOJ PRODAJE: Pogoj lastnika nepremičnine je, da kupec v primeru realizacije prodaje oziroma nakupa nepremičnine plača davek na promet z nepremičninami v višini 2 % od pogodbeno dogovorjene prodajne vrednosti nepremičnine.

V primeru zanimanja nas kontaktirajte; Agent Timotej Gal Kos, Tel: 00386 40 626 192, E-mail: gkos@bazarealestate.com.

Lepo vabljeni k ogledu.

Dodatno

Klet / Shramba

Tlorisi

Video

Lokacija

Nepremičnino trži

Izberi datum
Izberi čas
V primeru, če bi želeli ogled izven določenih ur pokličite posrednika.

Podobne nepremičnine

BAZA realestate
Pregled zasebnosti

To spletno mesto uporablja piškotke z namenom zagotovljanja najboljše možne uporabniške izkušnje. Podatki o piškotkih so shranjeni v vašem brskalniku in opravljajo funkcije pomnenja in prepoznave vaših nastavitev v brskalniku. Ko se vrnete na naše spletno mesto so shranjeni piškotki v pomoč naši ekipi, da razume kateri deli spletnega mesta so vam najbolj zanimivi in ​​uporabni.