Vrstna hiša, Ljubljana Trnovo - BAZA realestate

Vrstna hiša, Ljubljana Trnovo

HP13461226175

Strmeckijeva, 1000, Ljubljana, Slovenija

Natisni oglas

Osnovni podatki

Status
Prodaja
Tip nepremičnine
Hiša
Država
Slovenija
Tip nepremičnine
Vrstna hiša
Regija
Ljubljana mesto
Etažnost
P + 1 + M
Skupna površina
213,00 m2
Bivalna površina
145,20 m2
Leto gradnje
2025
Velikost zemljišča
144,40 m2
Parkirna mesta
2
Leto izgradnje
od 2021

Opis

Vrstna hiša – novogradnja, Ljubljana Trnovo – Trnovsko predmestje (Rakova Jelša), P+1+M, skupna površina 213,00 m2, bivalna površina 145,20 m2, terasa 8,00 m2, zemljišče 144,40 m2, 2 parkirni mesti. Cena: 494.100 EUR.

OGLASU JE PRILOŽENA VIZUALIZACIJA POTENCIALNE UREDITVE NOTRANJIH PROSTOROV TER ZUNANJOSTI.

Na izjemni lokaciji v Trnovskem predmestju, v mirni in slepi ulici prodamo sodobno vrstno hišo v novogradnji. Lokacija združuje bližino mestnega središča in hiter dostop do vse potrebne infrastrukture, hkrati pa ponuja stik z naravo in mirno bivalno okolje. V neposredni bližini so vrtec, trgovina, banka, pošta, restavracije, rekreacijske poti ob Ljubljanici ter hiter dostop do obvoznice in nakupovalnega središča Rudnik.

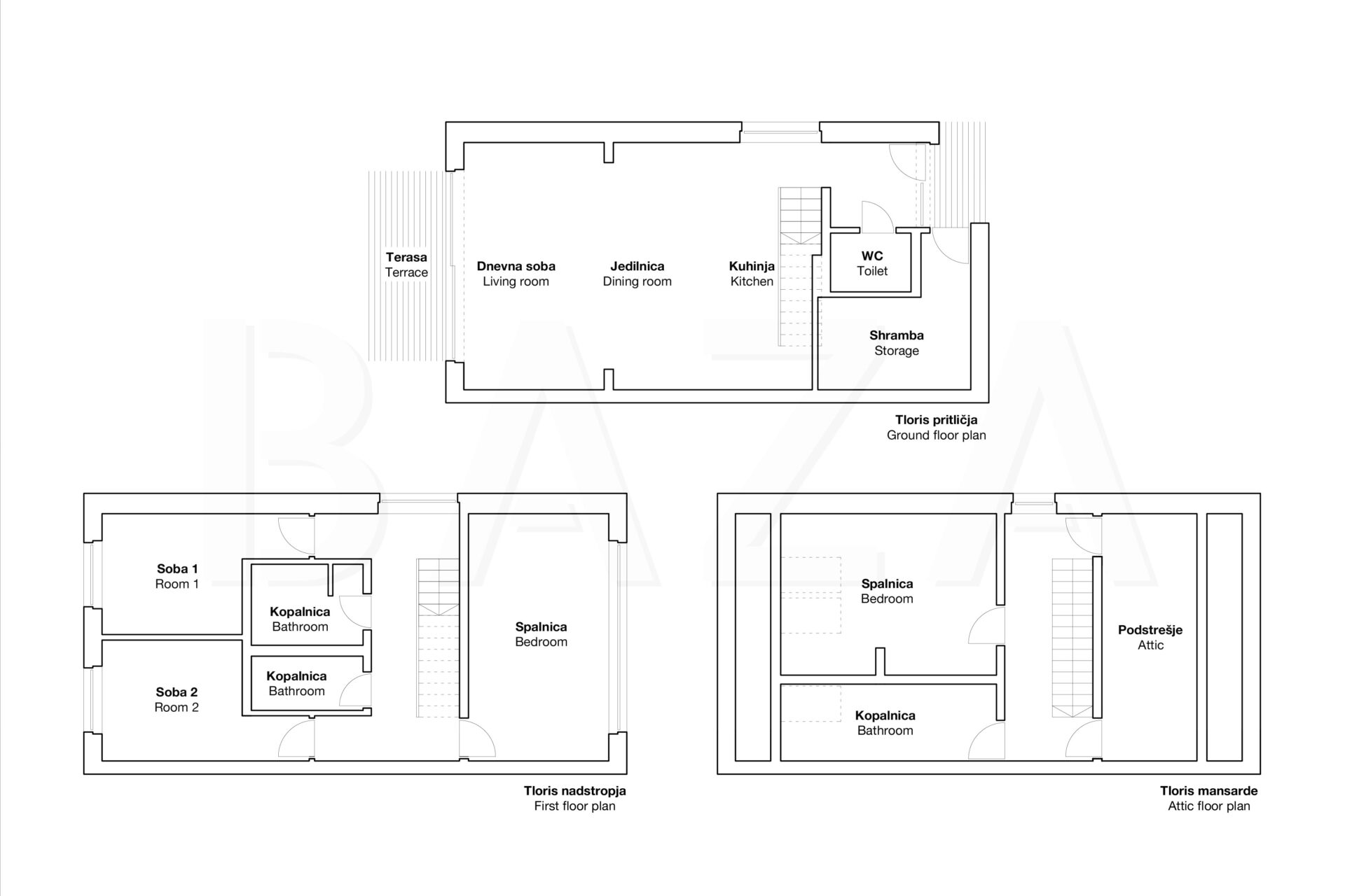
Hiša je zasnovana v treh etažah pritličje, nadstropje in mansarda in nudi premišljeno ter funkcionalno razporeditvijo prostorov. Skupna površina znaša 213,00 m2, od tega 145,20 m2 bivalne površine, 8,00 m2 terase ter 144,40 m2 pripadajočega zemljišča, na katerem sta urejeni tudi dve lastniški parkirni mesti.

V pritličju se nahajajo vhodna veža, shramba oziroma tehnični prostor, ločen WC ter odprt dnevno-bivalni prostor s kuhinjo in jedilnico, ki se preko velikih steklenih površin odpira na teraso in vrt. Nadstropje obsega tri spalnice, hodnik in dve kopalnici z WC-jem, medtem ko mansarda ponuja dodatno spalnico, hodnik ter še eno kopalnico z WC-jem.

Hiša bo zgrajena do 3. podaljšane gradbene faze. V tej fazi bodo izvedeni temelji in nosilna konstrukcija, streha z izolacijo, zunanja fasada, vgrajeno stavbno pohištvo (PVC/ALU okna in vhodna vrata) ter pripravljene osnovne inštalacije po dogovoru. Predvideno je sodobno ogrevanje s toplotno črpalko, povezano s talnim gretjem. Komunalni priključki bodo urejeni, dostop do objekta pa zagotovljen. Gradbeno dovoljenje je pravnomočno. Proti doplačilu je možna izvedba hiše na ključ, kar kupcu omogoča popolno prilagoditev notranje opreme po lastnih željah.

Na voljo sta še dve enoti po akcijski ceni. Poleg opisane enote je v ponudbi tudi končna vrstna hiša s skupno površino 220,00 m² in večjim zemljiščem v izmeri 241,00 m² po ceni 599.990 EUR.

Nepremičnina je primerna za družine, zahtevnejše kupce ali investitorje, ki iščejo novogradnjo na eni najbolj zaželenih lokacij v Ljubljani, z možnostjo nadaljnje prodaje ali oddajanja.

V primeru zanimanja nas kontaktirajte; Agentka Gala Rogelj, Tel: 00386-40-626-196, E-mail: grogelj@bazarealestate.com.

Lepo vabljeni k ogledu.

Dodatno

Balkon/Terasa

Tlorisi

Lokacija

Podobne nepremičnine

BAZA realestate
Pregled zasebnosti

To spletno mesto uporablja piškotke z namenom zagotovljanja najboljše možne uporabniške izkušnje. Podatki o piškotkih so shranjeni v vašem brskalniku in opravljajo funkcije pomnenja in prepoznave vaših nastavitev v brskalniku. Ko se vrnete na naše spletno mesto so shranjeni piškotki v pomoč naši ekipi, da razume kateri deli spletnega mesta so vam najbolj zanimivi in ​​uporabni.