Večstanovanjska hiša, Miklavž na Dravskem Polju - BAZA realestate

Večstanovanjska hiša, Miklavž na Dravskem Polju

HP13461226018

2204, Miklavž na Dravskem polju, Slovenija

Natisni oglas

Osnovni podatki

Status
Prodaja
Tip nepremičnine
Hiša
Država
Slovenija
Tip nepremičnine
Večstanovanjska
Regija
Podravska
Skupna površina
205,60 m2
Leto gradnje
1977
Velikost zemljišča
571,00 m2
Parkirna mesta
Da
Leto izgradnje
1968 - 1980

Opis

Večstanovanjska hiša, Podravska – Miklavž na Dravskem polju, zgrajeno l. 1977, popolnoma obnovljena, neto tlorisna površina 205,60 m2, pripadajoče zemljišče v velikosti 571,00 m2. Cena: 335.000 EUR.

Posredujemo pri prodaji obnovljene večstanovanjske hiše, ki se nahaja v mirnem naselju v Miklavžu. Lokacija nudi hitro povezavo do vse pomembne infrastrukture, hkrati pa omogoča prijetno in umirjeno bivanje.

Hiša obsega eno večje stanovanje in pet samostojnih garsonjer, ki se trenutno oddajajo v najem – odlična priložnost za vse, ki iščejo zanesljivo naložbo. Stanovanje ima ločen, zaseben vhod in nudi popolno nemoteče bivanje, urejen je ločen vhod za najemnike garsonjer.

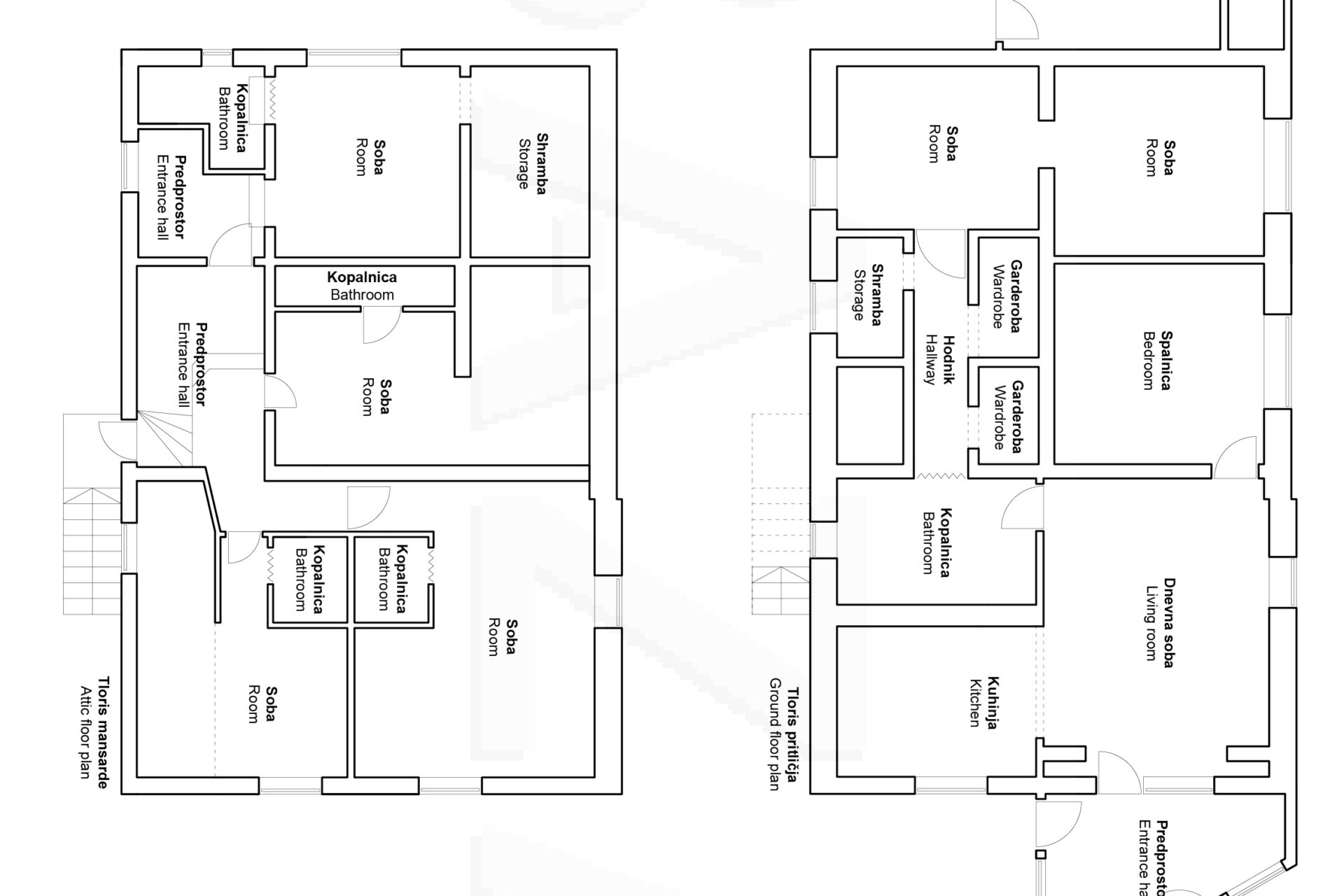
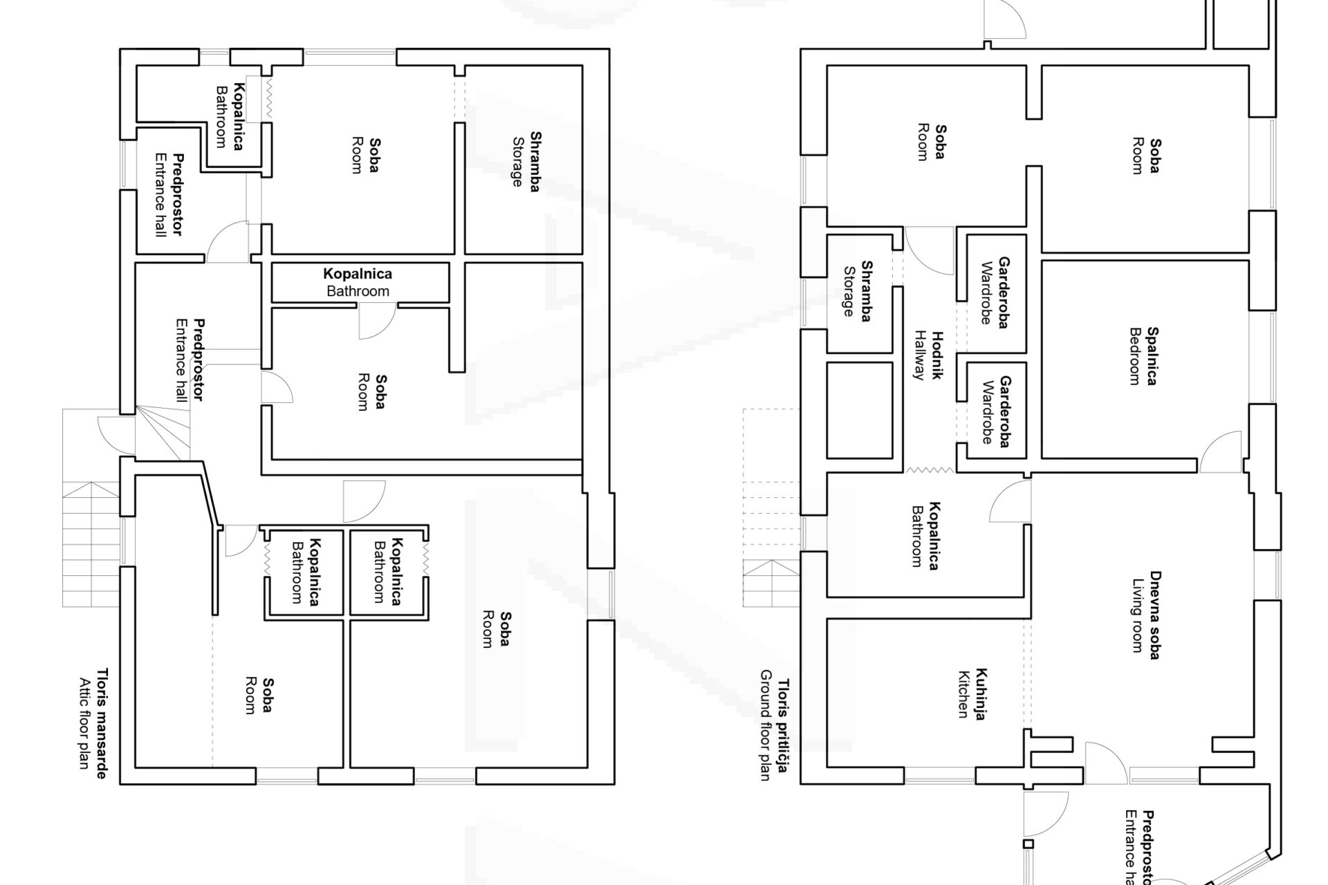
Bivalni prostor večjega stanovanja obsega večji predprostor, prostorno kopalnico, kuhinjo z jedilnico, udobno dnevno sobo, shrambo ter garderobno sobo oziroma likalnico. Spalni del sestavlja ena glavna spalnica. Hiša ima tudi kletne prostore, ki ponujajo dodatno shranjevalno površino.

Na voljo je pet garsonjer, velikosti približno 35 m², ki so funkcionalno zasnovane, vsaka s svojo razporeditvijo prostorov. Ena izmed enot ima tudi dodatno teraso. Vse garsonjere so trenutno oddane, z možnostjo prevzema najemnikov.

Na lepo urejenem, sončnem in ravnem zemljišču, se nahajata zunanji kamin in vrtna lopa. Zemljišče je v celoti ograjeno. Parkiranje je urejeno neposredno pred hišo. Na voljo je tudi eno pokrito parkirno mesto.

Hiša je bila obnovljena – streha in fasada sta bili v celoti prenovljeni, dodatno je bila fasada prebarvana leta 2024. Notranjost je bila postopoma posodobljena od prvotne ureditve, ogrevanje je urejeno z novo pečjo na pelete (2025). Vgrajeni so radiatorji, hiša je opremljena z električno pečjo.

Hiša se prodaja z vso razpoložljivo opremo, kar kupcu omogoča takojšnjo uporabo brez dodatnih vlaganj. Trenutna skupna dosežena najemnina znaša 2.300 EUR (največje stanovanje ni oddano zaradi lastne uporabe).

Nepremičnina združuje prostorno stanovanje in pet garsonjer ter tako ponuja številne možnosti uporabe. Je odlična priložnost tako za investitorje, ki iščejo zanesljiv donos, kot tudi za večje družine oziroma večgeneracijsko bivanje. Zaradi zasnove je primerna tudi za vse, ki si želijo združiti kakovostno bivanje z dodatnim prihodkom iz oddajanja stanovanjskih enot.

POGOJ PRODAJE: Pogoj lastnika nepremičnine je, da kupec, v primeru realizacije prodaje/nakupa nepremičnine, plača davek na promet z nepremičninami, v višini 2% od pogodbeno dogovorjene prodajne vrednosti nepremičnine.

V primeru zanimanja nas kontaktirajte; Agentka Barbara Pečenik, Tel: 00386-40-626-220, E-mail: bpecenik@bazarealestate.com.

Lepo vabljeni k ogledu.

Dodatno

Balkon/Terasa
Atrij
Klet / Shramba

Tlorisi

Lokacija

Podobne nepremičnine

BAZA realestate
Pregled zasebnosti

To spletno mesto uporablja piškotke z namenom zagotovljanja najboljše možne uporabniške izkušnje. Podatki o piškotkih so shranjeni v vašem brskalniku in opravljajo funkcije pomnenja in prepoznave vaših nastavitev v brskalniku. Ko se vrnete na naše spletno mesto so shranjeni piškotki v pomoč naši ekipi, da razume kateri deli spletnega mesta so vam najbolj zanimivi in ​​uporabni.