Poslovni prostor, Ljubljana Center - BAZA realestate

Poslovni prostor, Ljubljana Center

PPO13461226130

1000, Ljubljana, Slovenija

Natisni oglas

Osnovni podatki

Status
Oddaja
Tip nepremičnine
Poslovni prostor
Država
Slovenija
Regija
Ljubljana mesto
Lega
Jug
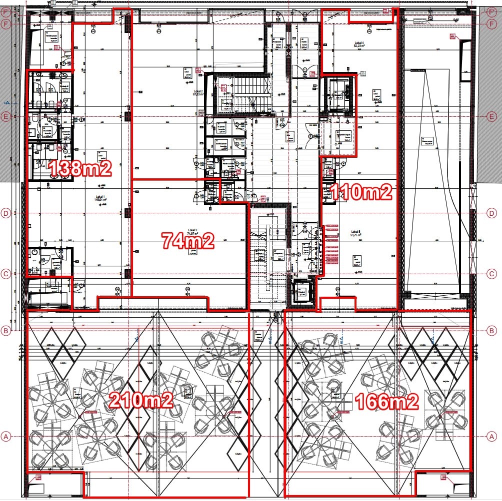
Skupna površina
110 m2
Nadstropje
P./6.
Leto gradnje
2022
Energetski razred
B1
Leto izgradnje
od 2021

Overview

Poslovni prostor – prostor za storitve, Ljubljana Center, zgrajeno l. 2022, P./6. nad., J lega, skupna površina 110,00 m2, terasa 166,00 m2. Cena 30,00 EUR/m2/mesec + DDV.

Na eni najboljših lokacij v središču Ljubljane, v bližini Prešernovega trga in ostale pomembne infrastrukture, oddamo prostor za storitve z možnostjo uporabe zunanjega vrta. Prostor je zgrajen na ključ in je primeren za vrsto dejavnosti, kot so gostinski lokal, salon, storitve, pisarne, ambasada in drugo.

Prostor se nahaja v pritličju in obsega osrednji prostor, sanitarije in teraso. Višina do inštalacij na stropu meri 3 m. Najemnina znaša 30 EUR + DDV/m2 za notranje površine in 2 EUR + DDV/m2 za zunanje površine. Možnost najema parkirnih mest v garaži stavbe za 200 EUR + DDV/mesec. Na 30 m2 notranje površine je predvideno eno parkirno mesto.

Lokal je popolnoma nov, v reprezentativni stavbi v samem centru mesta. V prostoru je sistem rekuperacije, ki omogoča ogrevanje in hlajenje. Topla voda je povezana na vročevod. Na voljo je takoj, minimalno obdobje najema 3 leta. Pogoj najema je varščina v višini 2-3 mesečnih najemnin povečanih za DDV ali menica ali bančna garancija izdana v korist najemodajalca v višini 2-3 mesečnih najemnin povečanih za DDV.

POGOJ NAJEMODAJALCA ZA SKLENITEV POSLA: Pogoj najemodajalca za sklenitev najemne pogodbe je, da najemnik prevzame del stroškov priprave dokumentacije za sestavo najemne pogodbe, sestave najemne pogodbe, sestave primopredajnega zapisnika in izvedbe primopredaje nepremičnine, sodelovanja pri prepisu naročnin oz. obveščanja upravnika in dobaviteljev o sklenjenem najemnem razmerju, priprave in hrambe listin ter slikovnega gradiva in pravnega svetovanja pri sklepanju najemnega razmerja (+ DDV).

Za pogodbe o posredovanje v prometu z nepremičninami, ki jih sklepajo med seboj gospodarski subjekti/pravne osebe – v primeru sklenitve najemne pogodbe, najemnik prevzame v plačilo agencijske stroške v višini ene najemnine (+ DDV).

V primeru zanimanja nas kontaktirajte; Agentka Katja Sraka, Tel: 00386-40-626-018, E-mail: ksraka@bazarealestate.com.

Vljudno vabljeni k ogledu.

Lokacija

Podobne nepremičnine

BAZA realestate
Pregled zasebnosti

To spletno mesto uporablja piškotke z namenom zagotovljanja najboljše možne uporabniške izkušnje. Podatki o piškotkih so shranjeni v vašem brskalniku in opravljajo funkcije pomnenja in prepoznave vaših nastavitev v brskalniku. Ko se vrnete na naše spletno mesto so shranjeni piškotki v pomoč naši ekipi, da razume kateri deli spletnega mesta so vam najbolj zanimivi in ​​uporabni.