Enota v dvostanovanjski hiši, Bohinjska Bistrica - BAZA realestate

Enota v dvostanovanjski hiši, Bohinjska Bistrica

SP13461226098

4264, Bohinjska Bistrica, Slovenija

Natisni oglas

Osnovni podatki

Status
Prodaja
Tip nepremičnine
Hiša
Država
Slovenija
Tip nepremičnine
Enota v dvostanovanjski hiši
Regija
Gorenjska
Etažnost
P+1+M
Skupna površina
115,90 m2
Bivalna površina
110,50 m2
Leto gradnje
2024
Velikost zemljišča
483,00 m2
Energetski razred
B1
Parkirna mesta
2
Leto izgradnje
od 2021

Overview

Enota v dvostanovanjski hiši, Gorenjska, Bohinjska Bistrica, zgrajeno l. 2024, P+1+ M, neto tlorisna površina 115,90 m2, bivalni prostor 110,50 m2, prostor z omejeno uporabo 5,40 m2, zemljišče 483,00 m2, 2x parkirno mesto. Cena: 549.000 EUR.

OGLASU JE PRILOŽENA VIZUALIZACIJA POTENCIALNE UREDITVE NOTRANJIH PROSTOROV.

Na čudoviti lokaciji v Bohinjski Bistrici je naprodaj novozgrajena enota dvostanovanjske hiše. Lega ponuja vse prednosti bivanja izven mestnega vrveža v neposrednem stiku z naravo, kjer so na voljo številne sprehajalne poti, Bohinjsko jezero je oddaljeno le 15 minut vožnje z avtomobilom. V bližini se nahaja vsa potrebna infrastruktura – trgovine, osnovna šola, vrtec ter avtobusno in železniško postajališče.

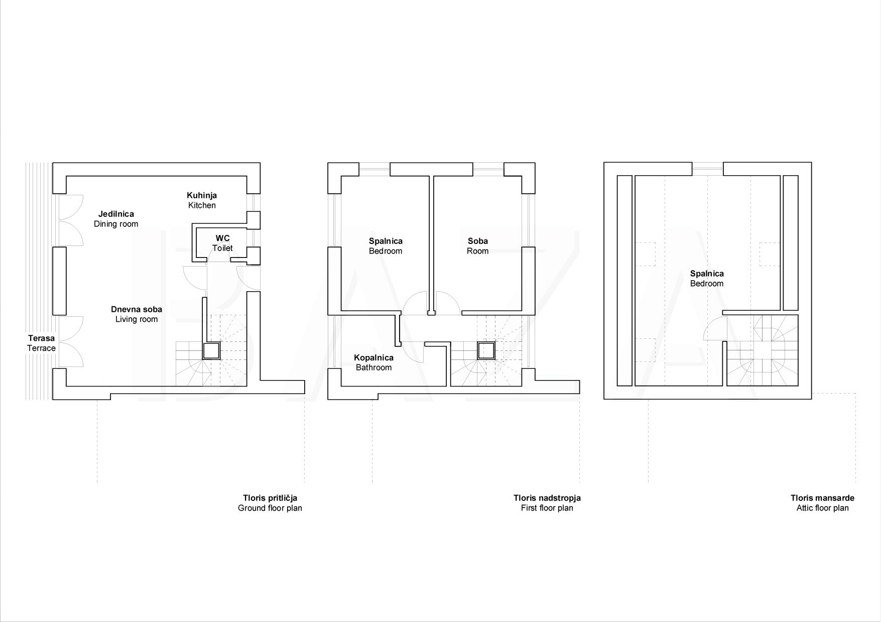
Objekt obsega tri etaže: pritličje, nadstropje in mansardo. V pritličju se nahajajo predprostor, sanitarije ter prostoren dnevno-bivalni del s kuhinjo in jedilnico, ki ima izhod na teraso. V nadstropju sta dve spalnici in kopalnica, opremljena s kadjo in prho. Mansarda nudi večji, svetel prostor primeren za dodatno spalnico, fitnes ali domačo pisarno.

Nepremičnina je opremljena s kuhinjskim in kopalniškim pohištvom ter kaminom. Kuhinja vključuje pečico, hladilnik, zamrzovalnik, pomivalni stroj, napo in indukcijsko kuhalno ploščo. V dnevnem prostoru je nameščen kamin, ki dodatno prispeva k prijetnemu vzdušju.

Gradnja hiše je klasična z opečnimi stenami in 28 cm izolacije, uporabljeni so bili nadstandardni materiali. Okna so troslojna z vgrajenimi senčili Bled, pripravljena je tudi predinštalacija za pametno upravljanje nepremičnine. Objekt je energetsko izredno učinkovit (razred B1) in ogrevan s toplotno črpalko preko talnega gretja, vgrajen je sistem centralne rekuperacije.

Objektu pripadate dve parkirni mesti ob hiši s predpripravo za električno polnilnico, na strehi je predpriprava tudi za sončno elektrarno.

Stroški so nizki in odvisni od porabe (cca 50-150€ mesečno). Primerno za pare, posameznike ali družine.

Cena vključuje DDV, za objekt je izdano pravnomočno uporabno dovoljenje.

POGOJ PRODAJE: Pogoj lastnika nepremičnine je, da kupec v primeru realizacije

prodaje/nakupa nepremičnine, povrne prodajalcu strošek agencijske provizije v višini

2 % od pogodbeno dogovorjene prodajne vrednosti nepremičnine + DDV.

V primeru zanimanja nas kontaktirajte; Agent Timotej Gal Kos, Tel: 00386-40-626-192, E-mail: gkos@bazarealestate.com.

Lepo vabljeni k ogledu.

Tlorisi

Lokacija

Javni promet
Restavracije
Nakupovalni centri
Kavarne in bari
Kultura in zabava
Fitness

Podobne nepremičnine

BAZA realestate
Pregled zasebnosti

To spletno mesto uporablja piškotke z namenom zagotovljanja najboljše možne uporabniške izkušnje. Podatki o piškotkih so shranjeni v vašem brskalniku in opravljajo funkcije pomnenja in prepoznave vaših nastavitev v brskalniku. Ko se vrnete na naše spletno mesto so shranjeni piškotki v pomoč naši ekipi, da razume kateri deli spletnega mesta so vam najbolj zanimivi in ​​uporabni.