Unit in two-apartment house, Bohinjska Bistrica - BAZA realestate

Unit in two-apartment house, Bohinjska Bistrica

SP13461226098

4264, Bohinjska Bistrica, Slovenija

Print listing

Key Details

Status
For sale
Type
House
Country
Slovenia
Type of real estate
Unit in two-apartment house
Region
Upper Carniola
Storey layout
GF+1+A
Gross surface area
115,90 m2
Net surface area
110,50 m2
Year of construction
2024
Land
483,00 m2
Energy class
B1
Parking space
2
Year of construction
2021+

Overview

Apartment in a two-apartment house, Gorenjska, Bohinjska Bistrica, built in 2024, ground floor + first floor + attic, net floor area 115.90 m2, living area 110.50 m2, space with limited use 5.40 m2, land 483.00 m2, 2 parking spaces. Price: 549,000 EUR.

A VISUALIZATION OF THE POTENTIAL ARRANGEMENT OF THE INTERIOR SPACES IS ATTACHED TO THE AD.

In a beautiful location in Bohinjska Bistrica, a newly built unit of a two-apartment house is for sale. The location offers all the advantages of living outside the urban hustle, in direct contact with nature, where numerous walking trails are available, and Lake Bohinj is only a 15-minute drive away. Nearby, all necessary infrastructure is available – shops, primary school, kindergarten, as well as bus and train stations.

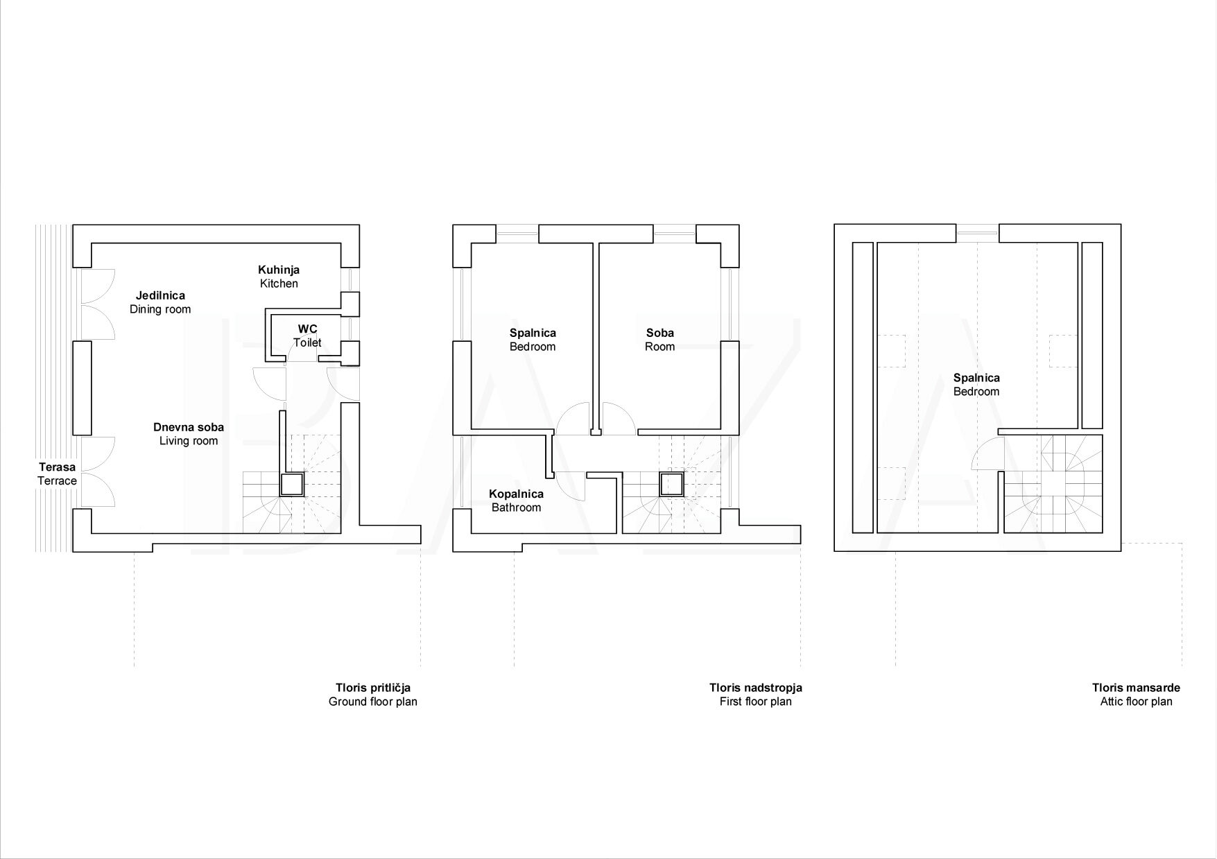
The property comprises three floors: ground floor, first floor, and attic. The ground floor includes an entrance area, sanitary facilities, and a spacious living area with kitchen and dining room, which opens onto a terrace. The first floor has two bedrooms and a bathroom equipped with a bathtub and shower. The attic offers a larger, bright space suitable for an additional bedroom, fitness room, or home office.

The property is furnished with kitchen and bathroom furniture and features a fireplace. The kitchen includes an oven, refrigerator, freezer, dishwasher, hood, and induction cooktop. In the living room, there is a fireplace that additionally contributes to a cozy atmosphere.

The house is constructed in a classic style with brick walls and 28 cm insulation, using above-standard materials. The windows are triple-glazed with built-in blinds from Bled, and the property is pre-wired for smart home management. The building is highly energy-efficient (class B1) and heated by a heat pump through underfloor heating; a centralized heat recovery system is installed.

The property includes two parking spaces next to the house with preparations for an electric charging station, and there is also preparation on the roof for a solar power system.

Costs are low and depend on consumption (approximately €50-150 per month). Suitable for couples, individuals, or families.

The price includes VAT, and a valid occupancy permit has been issued for the property.

CONDITION OF SALE: The property owner’s condition is that the buyer, upon the realization of the sale/purchase of the property, reimburses the seller for the agency commission cost amounting to 2% of the contractually agreed sale price of the property plus VAT.

In case of interest, please contact us; Agent Timotej Gal Kos, Tel: 00386-40-626-192, E-mail: gkos@bazarealestate.com.

You are kindly invited to view.

 

Floor Plans

Video

Explore the Area

Similar Properties

BAZA realestate
Privacy Overview

This website uses cookies so that we can provide you with the best user experience possible. Cookie information is stored in your browser and performs functions such as recognising you when you return to our website and helping our team to understand which sections of the website you find most interesting and useful.