3-sobno stanovanje, Kamnik - BAZA realestate

3-sobno stanovanje, Kamnik

SP13461226169

1241, Kamnik, Slovenija

Natisni oglas

Osnovni podatki

Status
Prodaja
Tip nepremičnine
Stanovanje
Država
Slovenija
Regija
Ljubljana okolica
Sobnost
3-sobno
Skupna površina
139,60 m2
Bivalna površina
85,20 m2
Nadstropje
4./4.
Leto gradnje
2007
Energetski razred
C
Leto prenove
2010
Parkirna mesta
2
Leto izgradnje
2001 - 2010

Opis

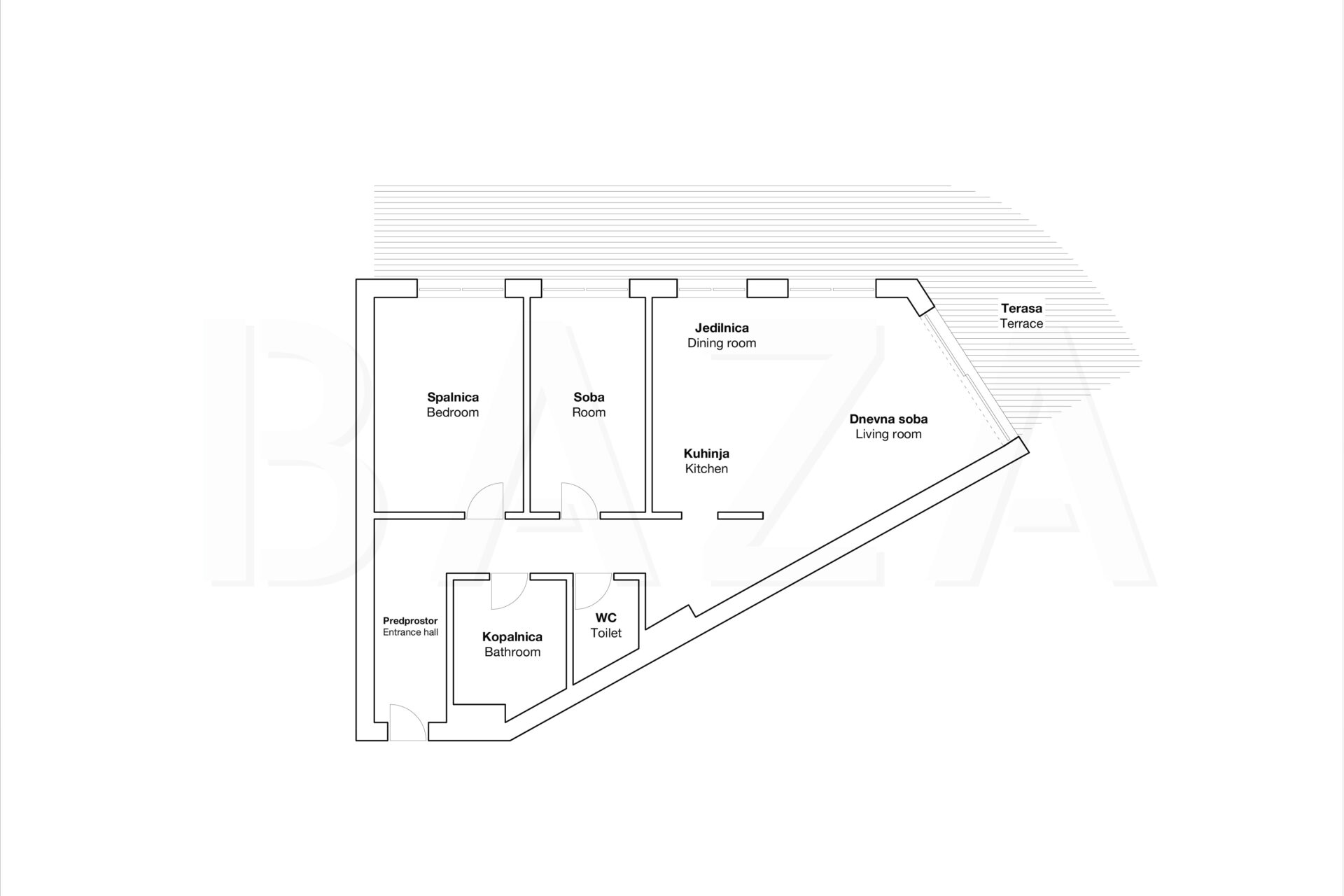
3-sobno stanovanje – penthouse, Ljubljana okolica – Kamnik, Bakovnik (Metuljček), zgrajeno l. 2007, prenovljeno l. 2010, 4./4. nad., bruto površina 139,60 m², uporabna površina 85,20 m², terasa 41,00 m², shrambi skupaj 13,40 m², dva parkirna boksa. Cena: 445.000 EUR.

V mirnem in urejenem naselju Metuljček v Kamniku prodamo izjemno svetlo in prijetno trisobno penthouse stanovanje, ki se nahaja v novejšem večstanovanjskem objektu z dvigalom. Lokacija je idealna za vse, ki želijo kombinacijo mirnega bivalnega okolja, bližine narave in dobre infrastrukture, saj so v neposredni bližini trgovine, šola, vrtec, avtobusna postaja, rekreacijske površine in hiter dostop do mestnega središča. Objekt je bil zgrajen leta 2007, leta 2010 je bilo stanovanje dokončano in opremljeno.

Stanovanje se nahaja v četrtem, najvišjem nadstropju stavbe in je zasnovano z mislijo na maksimalno udobje ter funkcionalnost. Sestoji iz prostornega dnevno-bivalnega prostora z izhodom na veliko teraso, kuhinje z jedilnim delom, ločenega WC-ja, dveh spalnic ter kopalnice. Skupna bruto površina znaša 139,60 m², od tega 85,20 m² uporabne površine, 41,00 m² odprtih površin terase, shrambi pa obsegata skupno 13,40 m² (shramba ob stanovanju in kletna shramba). Stanovanju pripadata tudi dva lastniška parkirna boksa v garaži pod objektom.

Tloris stanovanja je logično razdeljen na bivalni in spalni del. Dnevni prostor se prek velikih steklenih površin odpira na prostorno teraso s pogledom na Kamniške Alpe. Terasa je dovolj velika, da omogoča ureditev zunanjega salona, jedilnega kotička ali prostora za sproščanje. Spalni del je umeščen v mirnejši del stanovanja in vključuje dve spalnici ter sodobno kopalnico. Prostornost in dobra organizacija omogočata udobno bivanje tako posameznikom kot družinam.

Ogrevanje stanovanja je urejeno z lastno plinsko etažno centralno kurjavo, ki omogoča natančen nadzor nad porabo. Stroški so v povprečju 220 EUR mesečno v toplejšem delu leta (plin, upravnik, elektrika in rezervni sklad), pozimi pa znašajo približno 320 EUR. Energetska izkaznica je pridobljena, stanovanje ima energetski razred C.

V stavbi je urejena tudi kolesarnica, stanovanje je opremljeno s klimatsko napravo (v dnevni sobi), optičnim internetom in protivlomnimi vrati. Prodaja se popolnoma opremljeno s kakovostno, po meri izdelano opremo.

Stanovanje je primerno za pare, družine ali posameznike, ki si želijo kakovostno, svetlo in udobno bivanje v enem najbolj priljubljenih kamniških naselij. ZK stanje je urejeno, objekt ima pridobljeno gradbeno in uporabno dovoljenje, stanovanje je brez bremen, vselitev je mogoča po dogovoru.

POGOJ PRODAJE: Pogoj lastnika je, da kupec v primeru realizacije prodaje povrne prodajalcu strošek agencijske provizije v višini 2 % od dogovorjene vrednosti + DDV.

V primeru zanimanja nas kontaktirajte: Agentka Gala Rogelj, Tel: 00386-40-626-196, E-mail: grogelj@bazarealestate.com.

Lepo vabljeni k ogledu.

Dodatno

Balkon/Terasa
Dvigalo
Klet / Shramba

Tlorisi

Lokacija

BAZA realestate
Pregled zasebnosti

To spletno mesto uporablja piškotke z namenom zagotovljanja najboljše možne uporabniške izkušnje. Podatki o piškotkih so shranjeni v vašem brskalniku in opravljajo funkcije pomnenja in prepoznave vaših nastavitev v brskalniku. Ko se vrnete na naše spletno mesto so shranjeni piškotki v pomoč naši ekipi, da razume kateri deli spletnega mesta so vam najbolj zanimivi in ​​uporabni.