Two-apartment building, Ljubljana Rožna dolina - BAZA realestate

Two-apartment building, Ljubljana Rožna dolina

HO13461226243

1000, Ljubljana, Slovenija

Print listing

Key Details

Status
For rent
Type
House
Country
Slovenia
Region
City of Ljubljana
Number of rooms
4-room
Storey layout
P+1+T
Gross surface area
176,40 m2
Net surface area
146,00 m2
Year of construction
2025
Energy class
A2
Parking space
2
Year of construction
2021+

Overview

Unit in a two-apartment building, Ljubljana – Rožna dolina, new construction 2025, ground floor + 1st floor + attic, net floor area 176.40 m2, living area 146.00 m2, terrace 30.40 m2. Price: 3000.00 EUR/month.

At an excellent location, we offer for rent a residential unit in a modernly designed two-apartment building. The location offers coexistence with nature, active leisure time in Tivoli and Rožnik, and quick access to the city center. All necessary infrastructure for comfortable living is nearby (kindergarten, school, health center, LPP bus stop).

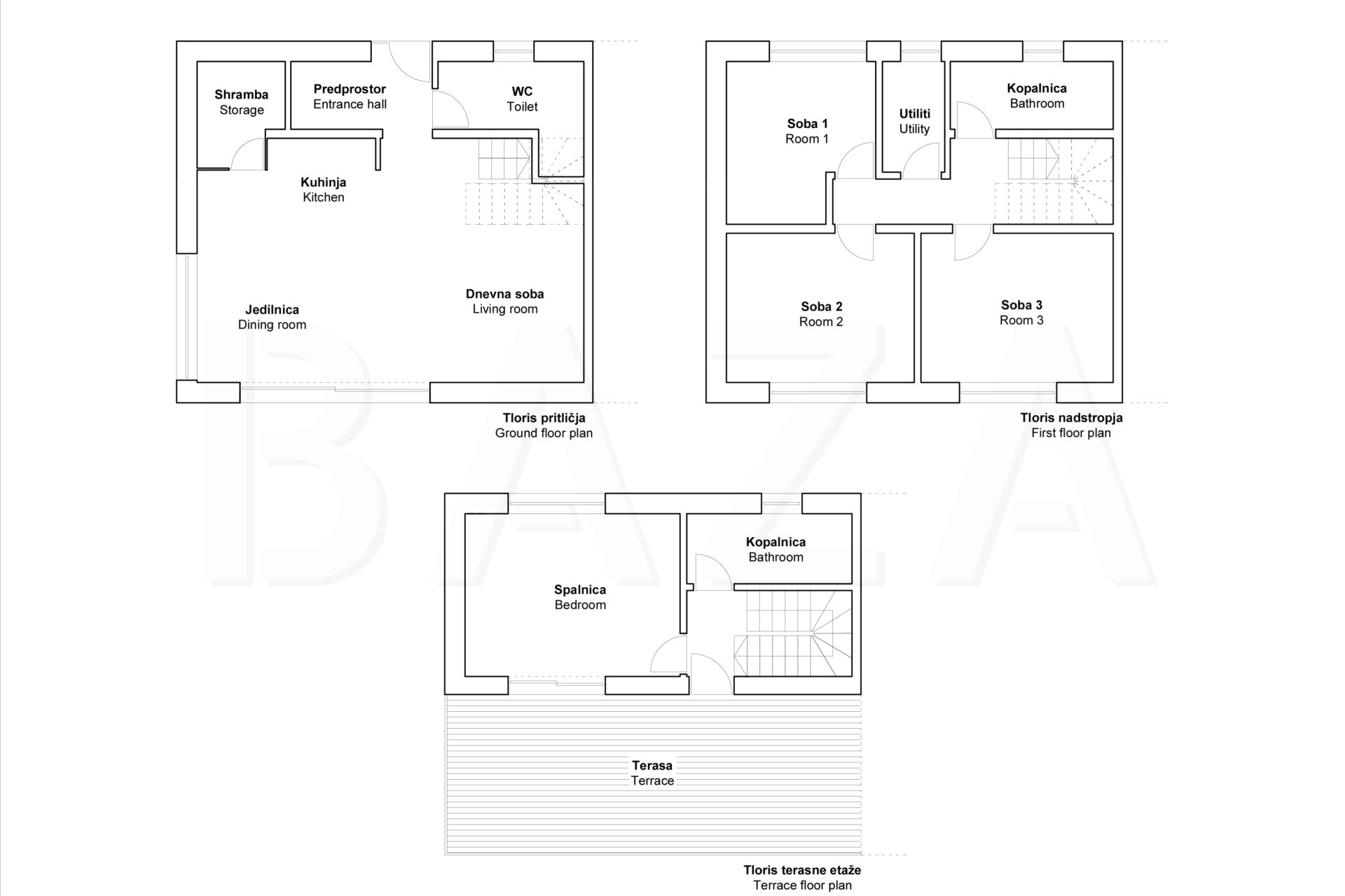
The ground floor includes an entrance hall, sanitary facilities, a technical room, an open living area with kitchen, dining room, and access to a green atrium with a terrace. On the upper floor, there are 3 rooms, a bathroom with a shower, and a utility room with a washing machine. The top floor features the master bedroom with a bathroom and a luxurious roof terrace of 30.40 m2. The NE/SW orientation provides plenty of natural light.

The equipment includes a fully equipped kitchen, dining room, sofa in the living room, furnished master bedroom, sanitary equipment, heat recovery ventilation, and a heat pump for underfloor heating. Two parking spaces are available in a shared asphalted parking lot located right next to the building. The land is fully fenced.

The building has all utility connections. Quality construction ensures low costs, which depend on consumption.

Minimum lease term is 36 months; for shorter lease periods, the rent is proportionally increased. The security deposit amounts to two months’ rent. The new building is ready for occupancy.

RENTAL CONDITION: The landlord’s condition for concluding the lease agreement is that the tenant covers part of the costs for preparing the documentation for drafting the lease agreement, drafting the lease agreement, preparing the handover protocol and carrying out the handover of the property, cooperating in transferring subscriptions or notifying the property manager and suppliers about the concluded lease relationship, preparing and storing documents and photographic material, and legal advice related to concluding the lease (+ VAT).

For brokerage contracts in real estate transactions concluded between business entities/legal persons – in case of concluding a lease agreement, the tenant assumes payment of agency fees amounting to one month’s rent + VAT.

If interested, please contact us; Agent Ana Paska Sešek, Tel: 0038640-626-216, E-mail: apsesek@bazarealestate.com.

You are warmly invited to view the property.

Amenities

Balcony/Terrace
Atrium

Floor Plans

Explore the Area

BAZA realestate
Privacy Overview

This website uses cookies so that we can provide you with the best user experience possible. Cookie information is stored in your browser and performs functions such as recognising you when you return to our website and helping our team to understand which sections of the website you find most interesting and useful.