Twin house, Ljubljana Ježica - BAZA realestate

Twin house, Ljubljana Ježica

HP13461225926

Soseska Ježica, 1000, Ljubljana, Slovenija

Print listing

Key Details

Status
For sale
Type
House
Country
Slovenia
Type of real estate
Twin house unit
Region
City of Ljubljana
Storey layout
GF + 1 + 2
Gross surface area
168,20 m2
Net surface area
157,90 m2
Year of construction
2025
Land
190,00 m2
Energy class
A2
Parking space
3
Year of construction
2021+

Overview

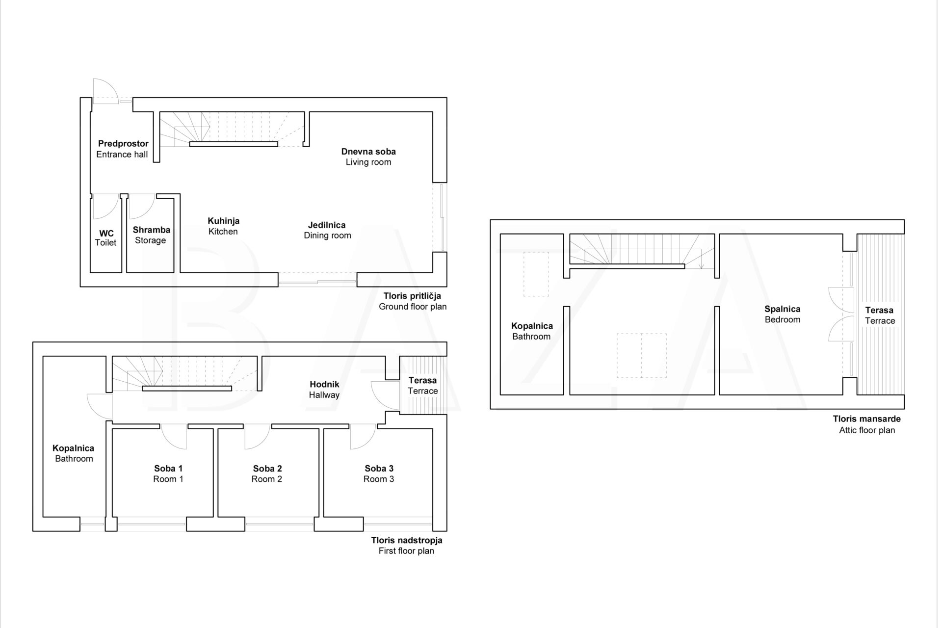
Twin house unit, Ljubljana Ježica, new construction, ground floor + 1 + 2, 4 bedrooms, 3 bathrooms, total area 168.20 m2, living area 157.90 m2, balconies 10.30 m2, atrium with terrace 42.00 m2, outdoor shed, land 190.00 m2, 3 parking spaces, turnkey finished, last unit available. Price: €614,621.31 including VAT.

In a beautiful location in Ježica, the last twin house unit is available. The unit offers plenty of comfort and usability. The neighborhood consists of four buildings with a total of 14 residential units. The location is characterized by the proximity of all necessary infrastructure, city main roads, as well as walking and hiking trails.

The twin house unit is distinguished by architectural refinement with a functional floor plan that on the ground floor includes a large living room with kitchen and dining area, pantry, utility room, and restroom, as well as an exit to the courtyard. The courtyard features a paved terrace, lawn, garden shed, water and electricity connections, and an exit to the parking lot. The first floor includes three rooms, a bathroom, a walk-in closet or work corner in the hallway, and a balcony. The second floor houses a parents’ apartment, comprising a bedroom, a transitional space for a wardrobe or living room, a bathroom, and a terrace. This floor also has connections for the possibility of a smaller kitchen.

The unit features triple-glazed windows with electrically operated external blinds, high-quality entrance and interior doors, modern sanitary ceramics and bathroom equipment, local ventilation units, a fireplace in the living room, lacquered oak parquet flooring, and underfloor heating powered by gas with the option to switch to a heat pump. The construction is brick with high-quality sound and thermal insulation. The unit includes three parking spaces with the option for an electric charging station. The neighborhood offers four parking spaces for guests.

The occupancy permit has been obtained. The energy class is A2. The apartments are finished turnkey and ready for immediate occupancy.

If interested, please contact us; Agent Katja Sraka, Tel: 00386-40-626-018, E-mail: ksraka@bazarealestate.com.

You are cordially invited to a viewing.

Amenities

Balcony/Terrace
Atrium
Basement / Storage

Floor Plans

Explore the Area

Similar Properties

BAZA realestate
Privacy Overview

This website uses cookies so that we can provide you with the best user experience possible. Cookie information is stored in your browser and performs functions such as recognising you when you return to our website and helping our team to understand which sections of the website you find most interesting and useful.