Terraced house, Slovenska Bistrica - BAZA realestate

Terraced house, Slovenska Bistrica

HO13461226089

2310, Slovenska Bistrica, Slovenija

Print listing

Key Details

Status
For sale
Type
House
Country
Slovenia
Type of real estate
Terraced
Region
Drava Region
Storey layout
GF + 1
Net surface area
100,00 m2
Year of construction
2004
Land
159,00 m2
Energy class
C
Year of renovation
2012
Parking space
Yes
Year of construction
2001 - 2010

Overview

Terraced house, Podravska – Slovenska Bistrica, built in 2004, renovated in 2012, ground floor + 1, net floor area 100 m2, plot size 159 m2. Price: 280,000 EUR.

We are mediating the sale of a beautiful terraced house in Slovenska Bistrica. The house is located in a small, well-maintained neighborhood of seven houses with a shared courtyard equipped with children’s playgrounds, in a quiet and pleasant environment. The location offers a perfect balance between privacy and excellent accessibility to all necessary infrastructure – schools, restaurants and cafes, shops, banks, petrol stations, public transport, and highway connections.

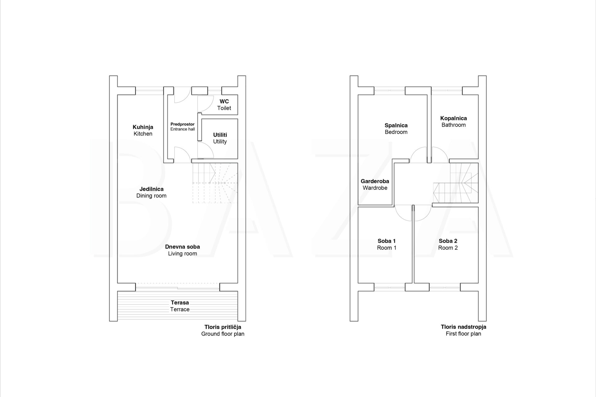
The house extends over the ground floor and one upper floor. The ground floor layout includes a hallway, separate toilet, storage room, spacious living room with kitchen and dining area. From the living room, there is access to a covered terrace and a grassy area with a southern orientation, where there is also a garden shed. On the first floor, there are 2 children’s rooms facing south, a bedroom with a walk-in closet facing north, and a bathroom equipped with a massage bathtub, two sinks, and a toilet. The house is sold fully furnished with higher quality equipment.

The house offers several heating options, namely a gas furnace (with radiators and underfloor heating in rooms with ceramic flooring), a fireplace, or 2 air conditioning units that also provide cooling during the summer months. The house is regularly maintained, with the last major renovation in 2012. The windows are wooden, equipped with blinds and mosquito nets. In 2020, a carport was built in front of the house, allowing parking for two cars.

The house is an excellent choice for a family seeking pleasant, quiet, and comfortable living in a well-maintained environment with all important infrastructure in close proximity.

SALE CONDITION: The condition set by the property owner is that in the event of completion of the sale/purchase of the property, the buyer reimburses the seller an agency commission fee of 2% of the contractually agreed sale price of the property plus VAT.

If interested, please contact us; Agent Janja Roškar, tel: 00386-40-626-228, E-mail: jroskar@bazarealestate.com

You are kindly invited to view the property.

Floor Plans

Explore the Area

Similar Properties

BAZA realestate
Privacy Overview

This website uses cookies so that we can provide you with the best user experience possible. Cookie information is stored in your browser and performs functions such as recognising you when you return to our website and helping our team to understand which sections of the website you find most interesting and useful.