Terraced house, Ljubljana Črnuče - BAZA realestate

Terraced house, Ljubljana Črnuče

HP13461226043

1231, Ljubljana, Slovenija

Print listing

Key Details

Status
For sale
Type
House
Country
Slovenia
Type of real estate
Terraced
Region
City of Ljubljana
Storey layout
GF+1+A
Gross surface area
83,70 m2
Net surface area
77,90 m2
Year of construction
1992
Land
194 m2
Energy class
B2
Year of renovation
2015
Year of construction
1981 - 2000

Overview

Terraced house, Ljubljana – Črnuška gmajna, built in 1992, renovated in 2015, ground floor + first floor + attic, net floor area 83.7 m², usable area 77.9 m², land 194 m². Price: 495,000 EUR.

In an exceptionally quiet and green location by the Črnuško Forest, we are selling a renovated and functionally designed end terraced house. The location offers a perfect balance between privacy, proximity to nature, and excellent accessibility to the city center and the bypass. Nearby are an elementary school, kindergarten, shops, a bus stop, and numerous recreational paths.

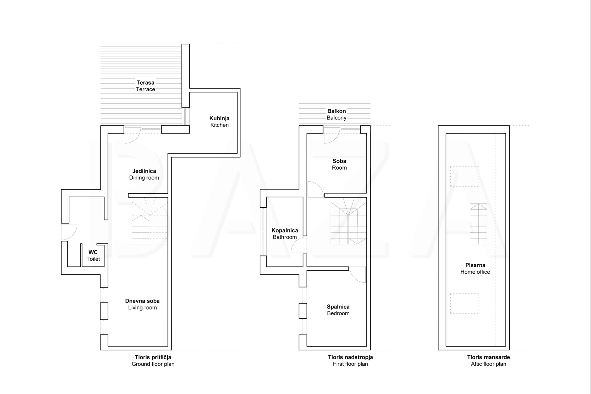
The house extends over three floors (ground floor, first floor, attic) and includes an entrance hall, a spacious living room with dining area and kitchen, two bedrooms, a bathroom, a separate toilet, and an additional attic room converted into an office. In addition to the interior spaces, there is a balcony (5.8 m²), an atrium (14 m²), and pleasant outdoor areas (50 m²).

The building was constructed in 1992 and thoroughly renovated in two phases: in 2015 (structure, facade, installations) and in 2023 (interior, attic). The house is fully equipped and designed with an emphasis on comfort and advanced technological solutions: underfloor heating, ventilation system, air conditioning units on all floors, GIRA Smart Home intelligent system, burglar-proof doors, high sound insulation, parquet and stone cladding, and equipped with above-standard custom-made furnishings.

Parking is possible in the neighborhood near the house on the street.

The land registry status is settled, and a building permit has been obtained for the property. The energy certificate is being prepared.

The advantages of the property are a quiet and safe neighborhood, modern interior design, functional layout, atrium and balcony, proximity to nature, and excellent city access. The house is ideal for families or individuals seeking quality living in a well-maintained neighborhood.

The house is available for occupancy from 1 December 2025.

CONDITION OF SALE: The property owner’s condition is that in case of the sale/purchase transaction, the buyer reimburses the seller for the agency commission cost amounting to 2% of the contractually agreed sale price of the property plus VAT.

If interested, please contact us; Agent Gala Rogelj, Tel: 00386-40-626-196, E-mail: grogelj@bazarealestate.com.

You are warmly invited to view.

Floor Plans

Explore the Area

Similar Properties

BAZA realestate
Privacy Overview

This website uses cookies so that we can provide you with the best user experience possible. Cookie information is stored in your browser and performs functions such as recognising you when you return to our website and helping our team to understand which sections of the website you find most interesting and useful.