House, Podravska Jurovski Dol - BAZA realestate

House, Podravska Jurovski Dol

HP13461226224

Jurovski dol, 2223, Lenart, Slovenia

Print listing

Key Details

Status
For sale
Type
House
Country
Slovenia
Type of real estate
house
Region
Drava Region
Storey layout
P+M
Gross surface area
134,27 m2
Year of construction
2025
Land
725,00 m2
Year of construction
2021+

Overview

Detached single-family house, Podravska – Jurovski dol, built in 2025, net floor area 134.27 m2, associated land plot size 725.00 m2. Price: 288,000 EUR.

A VISUALIZATION OF THE POTENTIAL ARRANGEMENT OF THE INTERIOR SPACES IS ATTACHED TO THE AD.

We facilitate the sale of a modern single-family house in an exceptional location in Jurovski Dol. The house is designed as an individual turnkey unit, with an emphasis on functionality, light, and a sense of home. The property is located in a well-maintained and quiet environment of Slovenske gorice. The location is extremely sunny and peaceful, offering a high quality of living. All necessary infrastructure and services are nearby, such as a primary school, kindergarten, playground, post office, and shop. Lenart is only about six kilometers away, where all additional infrastructure is available along with quick access to the highway interchange.

The house is built using the Porotherm Profi system and is ready for the execution of final finishing works and landscaping. Construction focuses on quality workmanship, precision, and long-term durability.

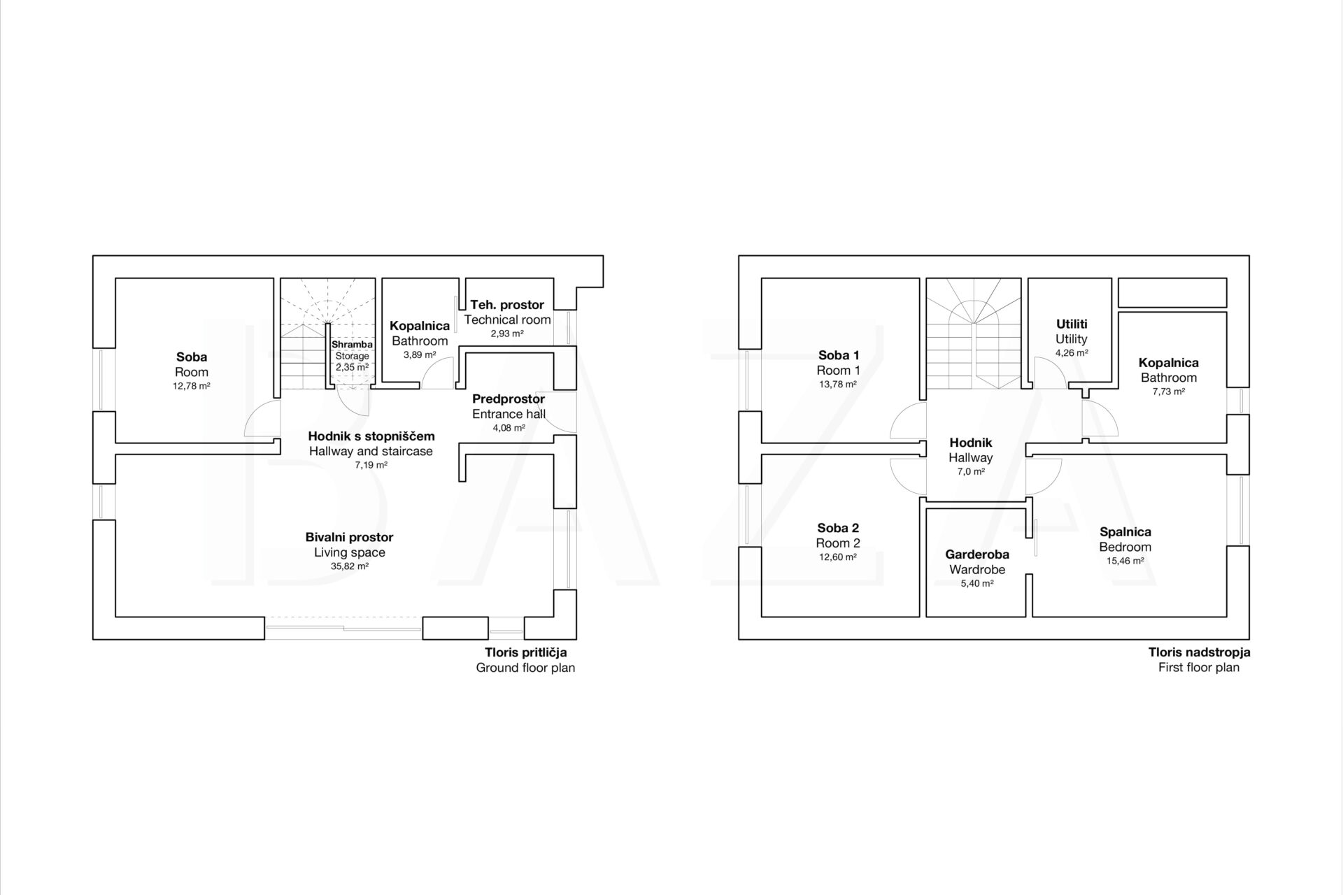
The functional floor plan includes two floors. The ground floor features an entrance hall, spacious kitchen with dining and living area, bathroom, one room, as well as storage and technical rooms. The living area is complemented by large panoramic windows. The floors are connected by an open staircase. The attic level offers a larger bedroom with a walk-in closet, two additional rooms, a bathroom, and a laundry room with access to one of the terraces.

The price includes entrance and interior doors, triple-glazed windows, electrically operated external blinds, floor and wall ceramics, other floor coverings, built-in lighting and switches, an 8 kW Mitsubishi heat pump, preparation for local ventilation, partial external fencing, and an air conditioning unit. The house is sold without interior and sanitary furniture.

Due to thermal insulation, the building will be energy efficient, which will be reflected in low operating costs. Heating will be provided by a heat pump combined with underfloor heating throughout the house, and cooling will be available via an air conditioning unit.

The entire plot is divided into three flat terraces, constructed with retaining walls. Access to outdoor areas is possible from both the ground floor and the attic.

The private and sufficiently large plot offers numerous possibilities for landscaping according to personal preferences. It is especially suitable for buyers seeking quality, peaceful family living or a thoughtful investment.

All utility connections are arranged – electricity, water supply, and telecommunications network with optical connection. Access to the property will be via an asphalt road.

The property will be available for occupancy approximately five months after purchase.

Option to purchase an open garage (42.50 m2) for parking two cars next to the house for EUR 10,000.00, including VAT.

CONDITION OF SALE: The owner’s condition is that the buyer, in case of completion of the sale/purchase of the property, reimburses the seller an agency commission fee of 2% of the contractually agreed sale price of the property plus VAT.

If interested, please contact us; Agent Barbara Pečenik, Tel: 00386-40-626-220, E-mail: bpecenik@bazarealestate.com.

You are warmly invited to view the property.

Amenities

Balcony/Terrace
Atrium

Floor Plans

Explore the Area

Listed By

Select date
Select time
If you would like to schedule a viewing outside of the designated hours, please call the agent.

Similar Properties

BAZA realestate
Privacy Overview

This website uses cookies so that we can provide you with the best user experience possible. Cookie information is stored in your browser and performs functions such as recognising you when you return to our website and helping our team to understand which sections of the website you find most interesting and useful.