Business premises - hospitality venue, Ljubljana Center - BAZA realestate

Business premises – hospitality venue, Ljubljana Center

PPP13461226106

1000, Ljubljana, Slovenija

Print listing

Key Details

Status
For sale
Type
Business premise
Country
Slovenia
Type of real estate
Hospitality venue
Region
City of Ljubljana
Gross surface area
125,00 m2
Net surface area
115,40 m2
Floor
Basement
Year of construction
1940
Energy class
D
Year of renovation
2023
Parking space
1
Year of construction
<1968

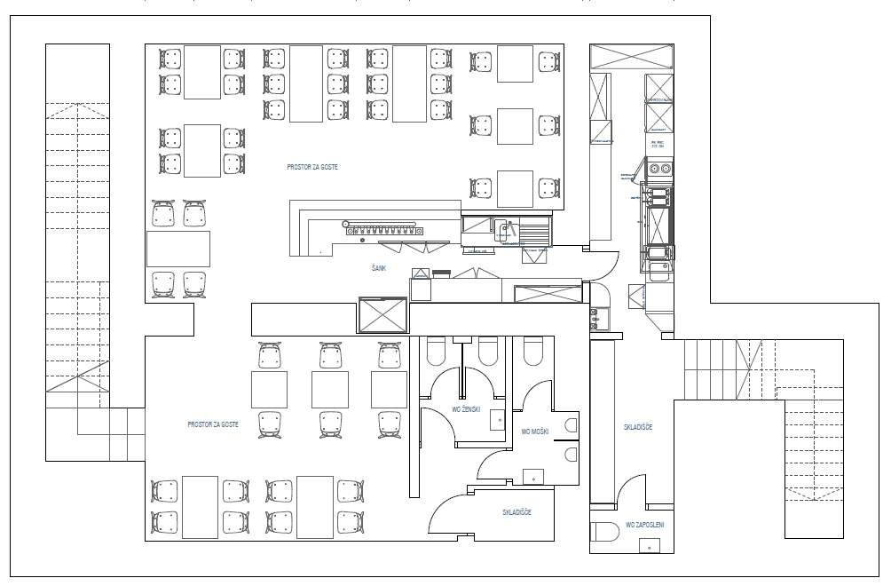
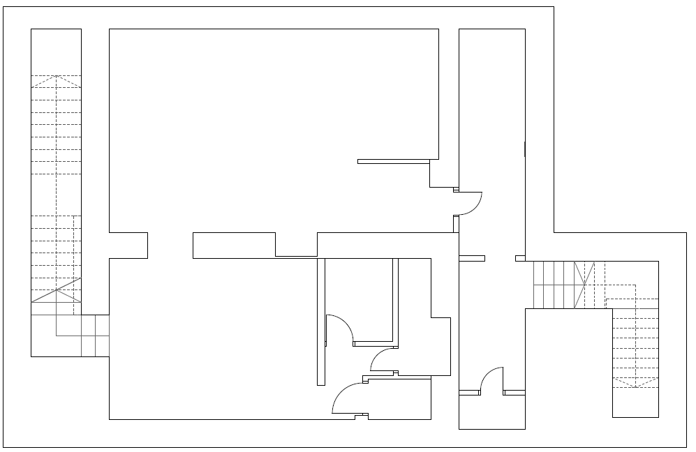
Overview

Business premises – hospitality venue, Ljubljana Center, built in 1940, renovated in 2023, cellar, total area 125.00 m2, usable area 115.40 m2. Price 362,500.00 EUR.

At one of the most sought-after locations in the heart of Ljubljana, in the immediate vicinity of Trubarjeva Street, we are selling a food and beverage hospitality venue. The premises have great potential for a pub-style bar, ćevabdžinica, Thai wok restaurant, nightclub, and more.

The venue is located in the basement and consists of two rooms with tables, a bar, kitchen, cleaning supplies storage, warehouse, restrooms, and staff WC. The space was fully renovated in 2023, including replacement of all installations (electricity, water, drainage), plastering, floor coverings, furniture, bar, new sanitary facilities, and a modern ventilation system. The heat recovery system allows for cooling or heating, connected to a heat pump. An audio system, fiber optic connection, and video surveillance system are installed. Costs are calculated based on consumption, and the building has a property manager. The kitchen is equipped with a grill, fryers, draft beer system, electric stove, exit to the atrium, and delivery access to the atrium. One parking space for staff use is available in the atrium.

Two tables for guests are allowed to be set up on the street in front of the venue. The inventory buyout amounts to EUR 50,000. The owner is a private individual. The venue is available immediately.

SALES CONDITION: The owner’s condition is that in case of sale/purchase realization, the buyer reimburses the seller with an agency commission fee of 2% of the contractually agreed sale price of the property plus VAT.

If interested, please contact us; agent Katja Sraka, Tel: 00386-40-626-018, E-mail: ksraka@bazarealestate.com

You are kindly invited to view the property.

Amenities

Atrium
Basement / Storage

Floor Plans

Explore the Area

Similar Properties

BAZA realestate
Privacy Overview

This website uses cookies so that we can provide you with the best user experience possible. Cookie information is stored in your browser and performs functions such as recognising you when you return to our website and helping our team to understand which sections of the website you find most interesting and useful.