3-room apartment, Logatec - BAZA realestate

3-room apartment, Logatec

SP13461226203

Tržaška cesta, 1370, Logatec, Slovenija

Print listing

Key Details

Status
For sale
Type
Apartment
Country
Slovenia
Region
Wider Ljubljana Region
Number of rooms
3-room
Orientation
East, west
Gross surface area
138,20 m2
Net surface area
71,90 m2
Floor
P./2.
Year of construction
2006
Energy class
C
Parking space
1
Year of construction
2001 - 2010

Overview

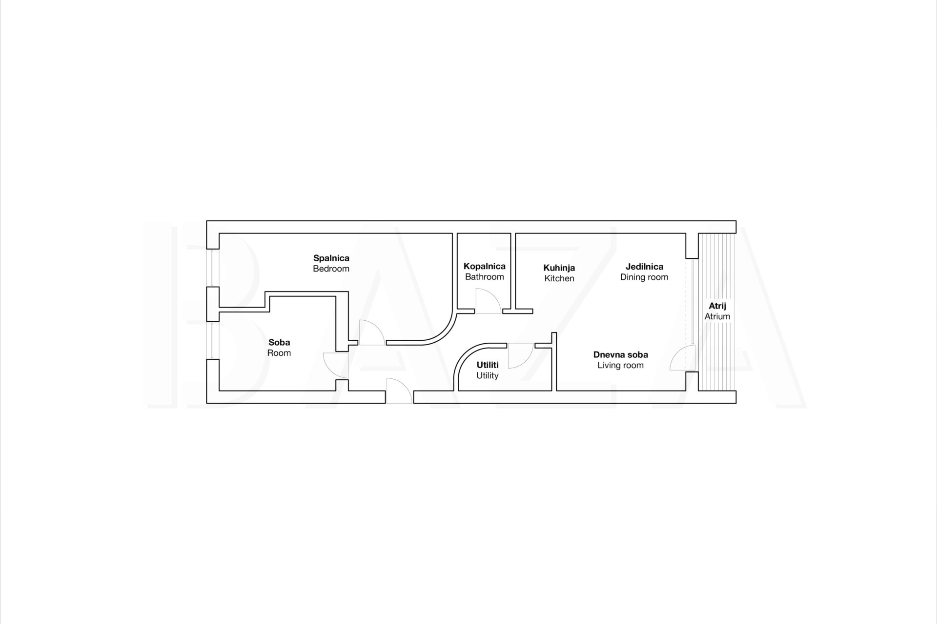
3-room atrium apartment, Wider Ljubljana Region – Logatec, built in 2006, 1st floor/2nd floor, total area 138.20 m2, living space 71.90 m2, atrium 43.60 m2, cellar 9.00 m2, private parking space in garage 13.70 m2, furnished, immediately move-in ready. Price: 305,000 EUR.

In Logatec, we are selling a bright and pleasant 3-room atrium apartment located on the ground floor of a well-maintained multi-residential building. The location offers excellent traffic accessibility, proximity to the highway, and quick access to shops, services, schools, and other infrastructure. The surroundings are urban yet quiet enough for living, with a good balance between functionality and quality of life.

The apartment includes an entrance hall, a spacious bedroom with a wardrobe area, a children’s room, a bathroom with a bathtub, a separate utility room, a hallway, and a central space with a kitchen, dining area, and living room with access to a spacious terrace and atrium. The apartment has an ideal layout, with sleeping areas oriented to the east and the living area facing west with plenty of afternoon sun.

The apartment comes with a spacious cellar of 9.00 m2 and shared use of common bicycle storage areas.

In addition to one private parking space in the basement part of the building, parking is also possible in front of the building and in public parking lots nearby.

The apartment is very well preserved and is sold furnished. Most of the furniture is custom-made. It is suitable for immediate occupancy.

Costs depend on consumption (property manager Naklo, electricity, water, heating, internet, reserve fund). Heating – gas boiler room. Energy class C.

The apartment is registered in the land register, free of encumbrances, and comes with all documentation (building permit, occupancy permit, and energy certificate).

SALES CONDITION: The property owner’s condition is that the buyer, in the event of a sale/purchase transaction, reimburses the seller for the agency commission fee amounting to 2% of the contractually agreed sale price of the property plus VAT.

If interested, please contact us; Agent Andrej Štebal, Tel: 00386-40-626-212, E-mail: astebal@bazarealestate.com.

You are warmly invited to view the property.

Amenities

Atrium

Explore the Area

Listed By

BAZA realestate
Privacy Overview

This website uses cookies so that we can provide you with the best user experience possible. Cookie information is stored in your browser and performs functions such as recognising you when you return to our website and helping our team to understand which sections of the website you find most interesting and useful.