4-room apartment, Šentvid - BAZA realestate

4-room apartment, Šentvid

SP13461226270

1210, Ljubljana, Slovenija

Print listing

Key Details

Status
For sale
Type
Apartment
Country
Slovenia
Region
City of Ljubljana
Number of rooms
4-room
Gross surface area
98,00 m2
Net surface area
98,00 m2
Floor
KP. /1.
Year of construction
1913
Land
279,00 m2
Year of renovation
2025
Parking space
2
Year of construction
<1968

Overview

THE ADVERTISEMENT INCLUDES A VISUALIZATION OF THE POTENTIAL INTERIOR LAYOUT.

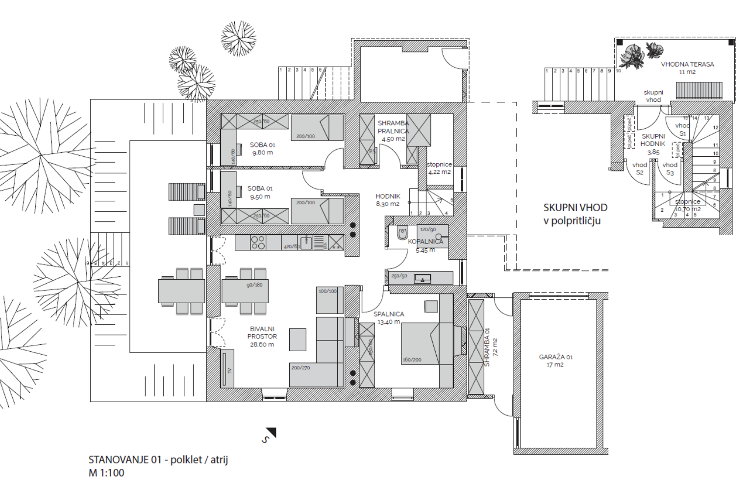
4-room apartment, Ljubljana – Šentvid, built in 1913, completely renovated in 2025, ground floor/1st floor, in a multi-apartment building, net floor area 98.00 m2, usable area 98.00 m2, garage with storage 24.20 m2, parking space 19.00 m2, garden and terrace 279.00 m2. Price: 485,000 EUR.

We are mediating the sale of a bright and spacious apartment in Šentvid. The apartment is located in a multi-family building that was completely renovated in 2025. All important infrastructure is nearby – kindergarten, school, shops, recreational areas, and a highway interchange.

The apartment layout includes two rooms, a bedroom, a bathroom, a hallway, a staircase, and a laundry room or storage, with the central part being a spacious living room with a dining area, allowing for pleasant and comfortable living. The room arrangement is functional and suitable for family life or for anyone who desires more living space and a well-utilized floor plan. A special feature of the apartment is also the separate outdoor area, as it includes a large garden and terrace offering numerous possibilities for landscaping, socializing, or outdoor relaxation.

The apartment also includes a garage with storage and a parking space. The building was thoroughly renovated, so the apartment offers a pleasant combination of well-maintained living, functional layout, and larger outdoor space. Heating is gas-operated with its own gas pump.

The property is suitable for families, couples, or individuals looking for a spacious apartment with a garden, terrace, parking, and a well-accessible location in Ljubljana.

CONDITION OF SALE: The property owner’s condition is that the buyer, in case of completion of the sale or purchase of the property, pays a real estate transfer tax of 2% of the contractually agreed sale value of the property.

If interested, please contact us; Agent Timotej Gal Kos, Tel: 00386 40 626 192, E-mail: gkos@bazarealestate.com.

You are warmly invited to view the property.

Amenities

Balcony/Terrace
Basement / Storage

Floor Plans

Explore the Area

Listed By

Select date
Select time
If you would like to schedule a viewing outside of the designated hours, please call the agent.

Similar Properties

BAZA realestate
Privacy Overview

This website uses cookies so that we can provide you with the best user experience possible. Cookie information is stored in your browser and performs functions such as recognising you when you return to our website and helping our team to understand which sections of the website you find most interesting and useful.