4-room apartment, Ljubljana Center - BAZA realestate

4-room apartment, Ljubljana Center

SP13461226108

Palais in Villa Schellenburg, 1000, Ljubljana, Slovenija

Print listing

Key Details

Status
For sale
Type
Apartment
Country
Slovenia
Type of real estate
Luxurious
Region
City of Ljubljana
Number of rooms
4-room
Gross surface area
168,94 m2
Floor
6./7.
Year of construction
2023
Energy class
A2
Parking space
Yes
Year of construction
2021+

Overview

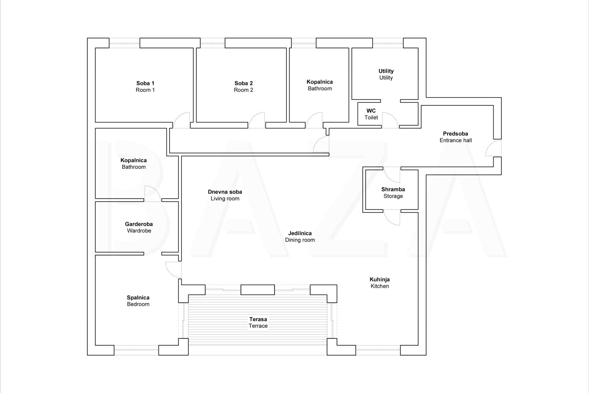
4-room apartment, Ljubljana Center, new construction, built in 2023, 6th/7th floor, total residential area 168.94 m2, loggia of 5.98 m2 and an associated storage room measuring 15.36 m2 located in the building’s basement. The apartment includes two parking spaces. Price: 1,653,413.52 EUR + 22% VAT.

In an excellent location, in the heart of Ljubljana city, we are selling a premium, modernly designed 4-room apartment.

The apartment layout offers an open floor plan, with separate guest toilets and a dedicated space for storage and maintenance. The unified living area is connected with the kitchen, living room, and dining area, which extends to a loggia. The sleeping area is separated and includes a bedroom and two (children’s) rooms. This section also has a walk-in closet, a bathroom with a bathtub, and a bathroom with a shower.

The apartment is partially furnished, with basic installed lighting and mounted screen blinds. Parquet and larger-format ceramic tiles are laid. Sanitary equipment is installed in the bathrooms.

The apartment is connected by elevator to the basement spaces, where two parking spots and a storage room are located. Each apartment in the basement, besides the parking spaces and storage, has shared use of a bicycle storage room and spaces for storing strollers. All parking spots allow installation of electric vehicle chargers. Motorcycle parking is also facilitated.

The building has a 24-hour reception. The apartment features modern, easy-to-operate installations. The living spaces are heated and cooled by underfloor heating and cooling, with additional cooling from convectors in the suspended ceiling; bathrooms are equipped with towel radiators. The building is connected to a hot water heating network. The apartment is ventilated by centrally installed devices that provide maximum comfort in the space and easy management.

If interested, please contact us; Agent Mojca Kucler Dolinar, Tel: 00386-40-626-197, E-mail: mkuclerdolinar@bazarealestate.com.

You are kindly invited to a viewing.

Amenities

Elevator
Basement / Storage

Explore the Area

Listed By

Select date
Select time
If you would like to schedule a viewing outside of the designated hours, please call the agent.

Similar Properties

BAZA realestate
Privacy Overview

This website uses cookies so that we can provide you with the best user experience possible. Cookie information is stored in your browser and performs functions such as recognising you when you return to our website and helping our team to understand which sections of the website you find most interesting and useful.