3-room apartment, Apače - BAZA realestate

3-room apartment, Apače

SP13461225569

Apače PS, 9253, Apače, Slovenija

Print listing

Key Details

Status
For sale
Type
Apartment
Country
Slovenia
Region
Mura Region
Number of rooms
3-room
Gross surface area
95,14 m2
Floor
1. / 3.
Year of construction
2025
Energy class
A1
Parking space
Yes
Year of construction
2021+

Overview

3-room apartment, Pomurska – Apače, built in 2025, 1st floor, net living area 95.14 m2, of which 6.99 m2 storage. Price: 220,628.27 EUR.

Exclusively presenting a modern apartment on the first floor of a new mixed-use commercial-residential building in the very center of Apače – a location with an exceptional position, rich history, and great character. The new building, completed in 2026, combines thoughtful architecture, truly high-quality workmanship, and the comfort of contemporary living. The last available units are still on offer.

The location offers everything a modern family needs for a quality life – nearby are a school, kindergarten, shop, pharmacy, post office, restaurants, and numerous recreational opportunities. On the ground floor of the building, healthcare services are also available, including a general practitioner, pediatrician, and dentist.

An additional advantage is the proximity to Austria, just a few minutes’ drive away, and quick connections to Gornja Radgona and Lenart.

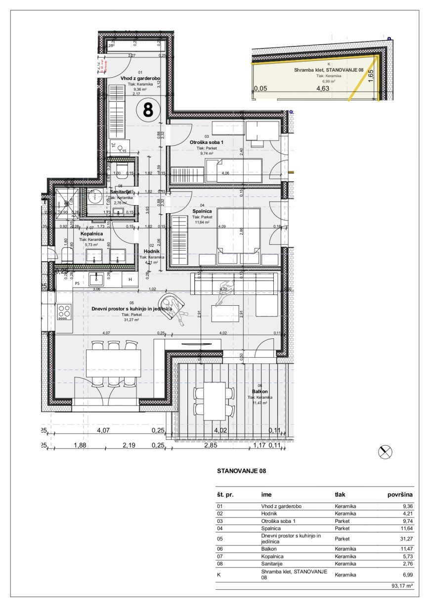
The floor plan is thoughtfully designed. The central living area with kitchen and dining room opens onto a spacious balcony; two larger bedrooms are separately arranged, and the apartment also offers a bathroom and an additional separate toilet. The layout allows for pleasant living with plenty of light, sufficient privacy, and functionality.

The apartment is located in a building with an elevator, with floors K+P+1+2+3. The construction includes 20 cm thermal insulation made of stone wool, triple-glazed windows with electric aluminum blinds, and quality interior materials – exceptionally high-quality oak parquet, ceramic tiles, and oak veneer interior doors. Bathroom fixtures are from Villeroy & Boch and Geberit.

The apartment has a separate system for heating and cooling the rooms and sanitary water with its own heat pump and built-in wall convector.

A central ventilation system is also installed, characterized by excellent technical features – high heat recovery efficiency, extremely quiet operation, and low energy consumption.

Due to energy efficiency class A1, living costs are exceptionally low, reflecting long-term financial savings.

Each apartment also includes a storage room.

There is an option to purchase an external covered parking space for 5,475.00 EUR, a garage for 11,498.00 EUR, or an external uncovered parking space for 2,409.00 EUR.

The apartment represents an excellent choice for personal residence or investment, as the supply of rental apartments in this area is limited.

If interested, please contact us; Agent Barbara Pečenik, Tel: 00386-40-626-220, E-mail: bpecenik@bazarealestate.com.

You are warmly invited to view.

Amenities

Balcony/Terrace
Elevator
Basement / Storage

Floor Plans

Video

Explore the Area

Similar Properties

BAZA realestate
Privacy Overview

This website uses cookies so that we can provide you with the best user experience possible. Cookie information is stored in your browser and performs functions such as recognising you when you return to our website and helping our team to understand which sections of the website you find most interesting and useful.