Unit in a two-apartment house, Ljubljana - Tomišelj - BAZA realestate

Unit in a two-apartment house, Ljubljana – Tomišelj

HP13461226071

1292, Ig, Slovenija

Print listing

Key Details

Status
For sale
Type
House
Country
Slovenia
Type of real estate
Two-apartment
Region
Wider Ljubljana Region
Storey layout
GF + 1 + A
Orientation
South-east
Gross surface area
187,33 m2
Net surface area
137,33 m2
Year of construction
2026
Land
500,00 m2
Parking space
3
Year of construction
2021+

Overview

Unit in a two-apartment house, Ljubljana – Tomišelj, new construction, expected completion May 2026, 4th above-ground floor, total area 187.33 m2, living space 137.33 m2, land 500 m2, move-in at the beginning of 2027. Price: 417,000 EUR.

A VISUALIZATION OF THE POTENTIAL ARRANGEMENT OF THE INTERIOR AND EXTERIOR SPACES IS ATTACHED TO THE AD.

In the quiet settlement of Tomišelj, just 8.5 km from the Ljubljana Rudnik highway junction, we are selling a unit in a two-apartment house. Nearby are an elementary school, a bus stop, as well as walking paths and green areas. The location offers numerous opportunities for recreation in the Ljubljana Marsh Landscape Park.

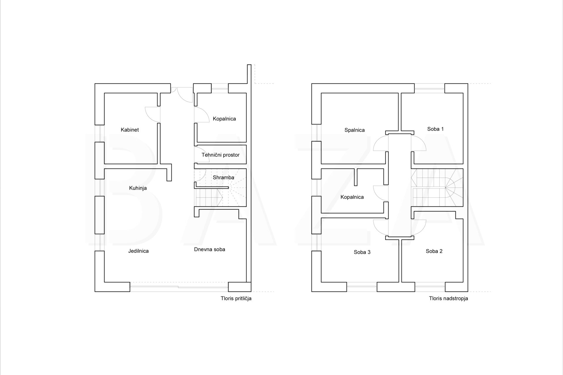
The floor plan design includes three levels (G+1+M). The living area of the ground floor and first floor totals a net size of 137.33 m2. The attic is planned as a storage space of 50 m2.

The ground floor houses an entrance hall, an office, a bathroom, a technical room, a pantry, a corridor, a living room with kitchen and dining area, and access to the garden. On the first floor, there is a corridor, a bedroom, a bathroom, and three additional rooms. The layout offers a functional arrangement with abundant natural light in all rooms, as the unit is oriented southeast. The house is located at the end of a dead-end street bordering agricultural land.

The unit will be constructed from quality materials, featuring high-quality triple-glazed PVC windows with external blinds and preparation for mosquito nets. The wall insulation thickness is 20 cm. Heating and cooling of the building is planned via a water-to-air heat pump, including underfloor heating. Preparation for a solar power system, electric vehicle charging station, fireplace (chimney), and local ventilation system is also planned.

The unit includes 500 m2 of land, of which 300 m2 are green areas, and 112 m2 of yard and atrium, where three parking spaces are also planned.

The house will have all utility connections (water, electricity, sewer connection, fiber optic).

The unit will be built up to construction phase IV with the possibility of an agreement for turnkey completion. The expected handover date is early 2027.

The price already includes 9.5% VAT.

SALES CONDITION: The property owner’s condition is that the buyer, in case of completion of sale/purchase of the property, reimburses the seller an agency commission fee of 2% of the contractually agreed sale price of the property + VAT.

If interested, please contact us; Agent Andrej Štebal, Tel: 00386-40-626-212, E-mail: astebal@bazarealestate.com.

You are warmly invited to view the property.

Amenities

Atrium
Basement / Storage

Explore the Area

Transportation
Restaurants
Shopping
Cafes & Bars
Arts & Entertainment
Fitness

Similar Properties